- 価格
-
価格未定(予定)
- 専有面積
-
54.00㎡~84.74㎡
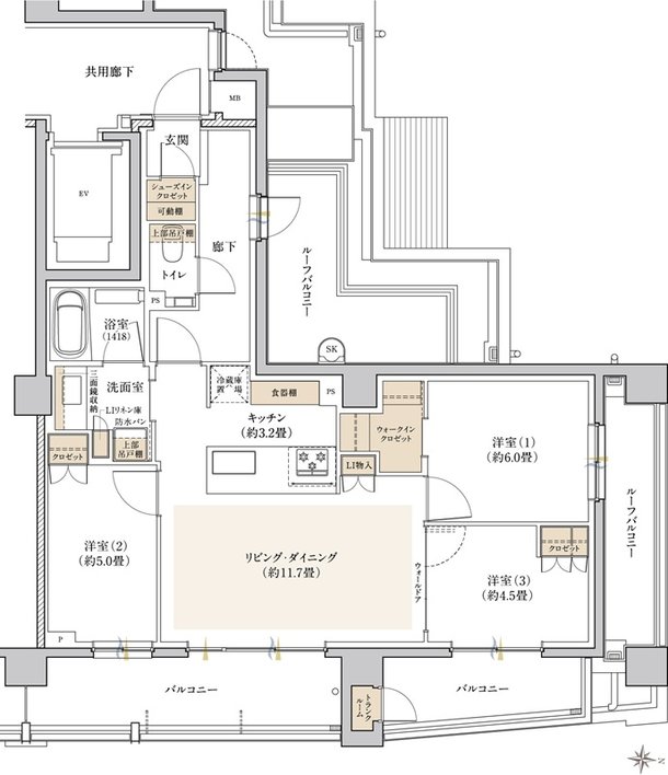
- 間取り
-
2LDK~3LDK
間取りを見る(5件)
- 販売スケジュール
-
2026年1月下旬より販売開始予定

