- 価格
-
4688万円~7498万円
月々の支払い額を見る
- 専有面積
-
55.61㎡~81.83㎡
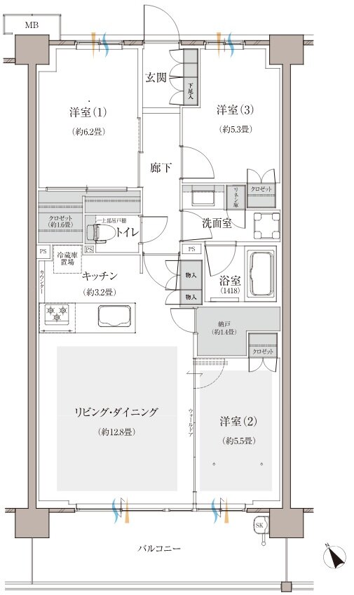
- 間取り
-
1LDK+S(サービスルーム(納戸))~4LDK
間取りを見る(14件)
- 販売スケジュール
-
先着順申込受付中 ■申込受付時間:10:00~18:00

