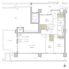
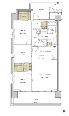
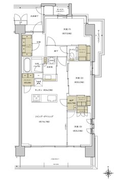
間取り
この物件の詳細情報に戻る3LDK掲載8件
WIC:ウォークインクロゼット SIC:シューズインクロゼット N:納戸
※掲載の図面は計画段階のものであり今後変更になる場合があります。
関連する他の物件も見てみる
特徴
- 子どもと暮らす(187)
- I型キッチン(180)
- 対面キッチン(180)
- ウォークインクローゼット(172)
- 一人暮らし・二人暮らし向け(165)
- 可変式間仕切り(132)
- 玄関からリビングが見えない間取り(127)
- シューズインクローゼット(127)
- 食器洗い乾燥機(食洗機)(123)
- 販売前・販売予定(112)
- 平置き駐車場(111)
- 浴室暖房換気乾燥機(110)
- モデルルーム公開中(97)
- 複層ガラス(ペアガラス)(97)
- 駅近(駅徒歩5分以内・駅直結)(85)
- 2面バルコニー(84)
- ZEHマンション(83)
- 南向き(81)
- 大規模マンション(72)
- ディスポーザー(66)
- ラウンジ(63)
- 出入口が2か所以上あるキッチン(53)
- ルーフバルコニー(37)
- 広いリビング(29)
- IHクッキングヒーター(2)
地域
間取り
不動産会社
駅
沿線

