間取り
この物件の詳細情報に戻る2LDK掲載4件
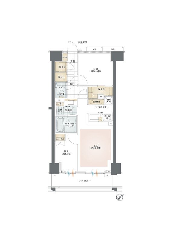
WIC:ウォークインクローゼット
SIC:シューズインクローク
※掲載の図面は計画段階のもので、諸条件により多少変更になる場合があります。また、面積が若干増減する場合があります。
※方位記号には若干誤差があります。正確な方位については設計図書でご確認ください。
関連する他の物件も見てみる
特徴
- 子どもと暮らす(181)
- 対面キッチン(178)
- I型キッチン(174)
- ウォークインクローゼット(167)
- 一人暮らし・二人暮らし向け(159)
- 床暖房(158)
- 玄関からリビングが見えない間取り(135)
- シューズインクローゼット(132)
- 食器洗い乾燥機(食洗機)(125)
- 浴室暖房換気乾燥機(107)
- 平置き駐車場(106)
- 販売前・販売予定(101)
- 高級マンション・ハイグレードマンション(101)
- 複層ガラス(ペアガラス)(100)
- ハンズフリーキー(97)
- モデルルーム公開中(96)
- 駅近(駅徒歩5分以内・駅直結)(79)
- 大規模マンション(73)
- 出入口が2か所以上あるキッチン(57)
- ミストサウナ(45)
- ルーフバルコニー(45)
- 南東向き(42)
- 南西向き(37)
- 広いリビング(33)
地域
間取り
価格帯
不動産会社
駅
沿線

