- 価格
-
1億2998万円~3億4798万円
月々の支払い額を見る
- 専有面積
-
64.35㎡~105.43㎡
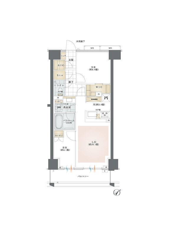
- 間取り
-
2LDK+SR(納戸)~3LDK
間取りを見る(8件)
- 販売スケジュール
-
先着順申込受付中

