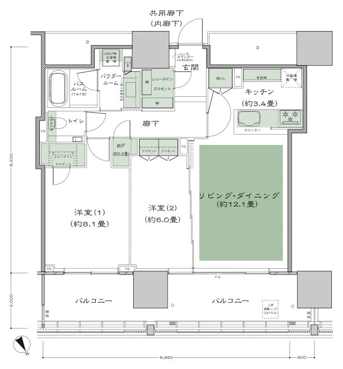
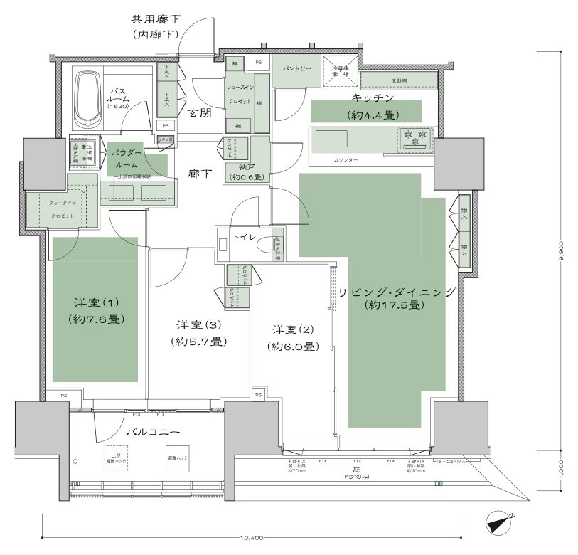
間取り
この物件の詳細情報に戻る2LDK掲載4件
N:納戸 2WIC:2ウォークインクロゼット SIC:シューズインクロゼット WIC:ウォークインクロゼット
※掲載の図面は、施工上の都合・改良等により多少変更する場合があります。あらかじめご了承ください。
※掲載の図面は本タイプの基本図面です。階数・列により間取りが一部異なる場合があります。詳細は図面集をご確認ください。
関連する他の物件も見てみる
特徴
- 子どもと暮らす(188)
- 対面キッチン(181)
- I型キッチン(179)
- ウォークインクローゼット(173)
- 一人暮らし・二人暮らし向け(164)
- 床暖房(162)
- 可変式間仕切り(144)
- 玄関からリビングが見えない間取り(136)
- 複数沿線利用可能(133)
- シューズインクローゼット(132)
- 食器洗い乾燥機(食洗機)(128)
- 宅配ボックス(112)
- 複層ガラス(ペアガラス)(101)
- 高級マンション・ハイグレードマンション(98)
- ハンズフリーキー(96)
- 2面バルコニー(94)
- モデルルーム公開中(94)
- 東向き(77)
- 西向き(76)
- エコマンション(75)
- 大規模マンション(73)
- ディスポーザー(70)
- 内廊下(63)
- アウトフレーム工法(48)
- ミストサウナ(48)
- 耐震・免震・制振(40)
- L型キッチン(34)
- 広いリビング(33)
- パーティールーム(31)
- タワーマンション・高層マンション(28)
- 北向き(27)
- アイランドキッチン(24)
- ゲストルーム(24)
- コンシェルジュサービス(17)
- 広いバルコニー(16)
- オープンキッチン(9)
地域
間取り
価格帯
不動産会社
駅
沿線

