- 価格
-
1億4000万円~4億8000万円
月々の支払い額を見る
- 専有面積
-
40.72㎡~97.43㎡
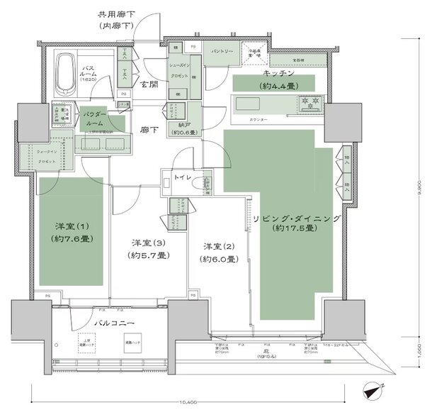
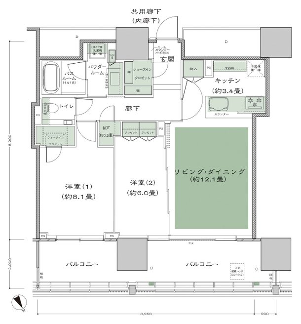
- 間取り
-
1LDK、2LDK、3LDK
間取りを見る(7件)
- 販売スケジュール
-
先着順受付

