- 価格
-
8800万円~1億2000万円
月々の支払い額を見る
- 専有面積
-
55.60㎡~67.96㎡
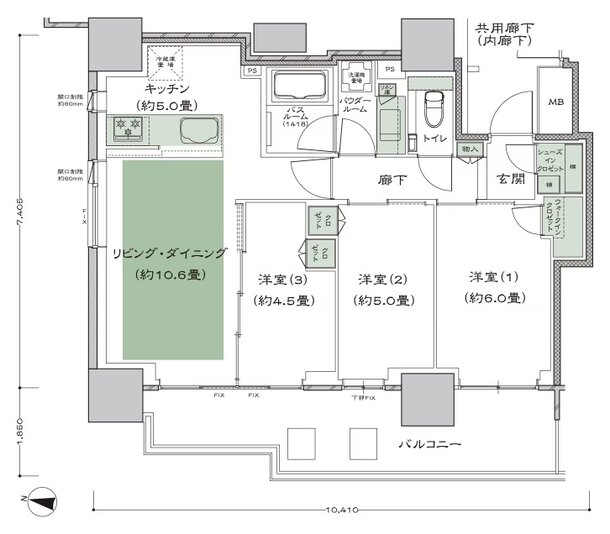
- 間取り
-
2LDK・3LDK
間取りを見る(12件)
- 販売スケジュール
-
先着順申込み受付中

