- 価格
-
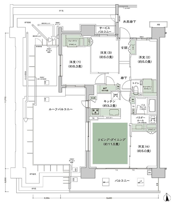
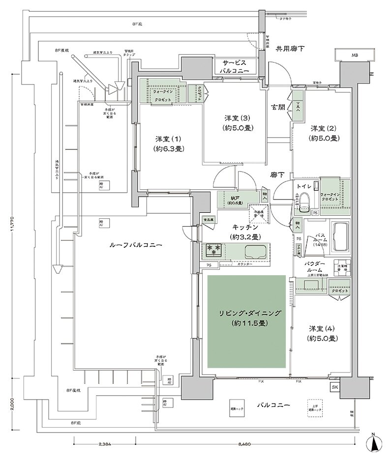
9000万円~1億2000万円
月々の支払い額を見る
- 専有面積
-
67.38㎡~80.72㎡
- 間取り
-
2LDK+S(納戸)~4LDK
間取りを見る(7件)
- 販売スケジュール
-
先着順受付

