- 価格
-
9000万円~1億2500万円
月々の支払い額を見る
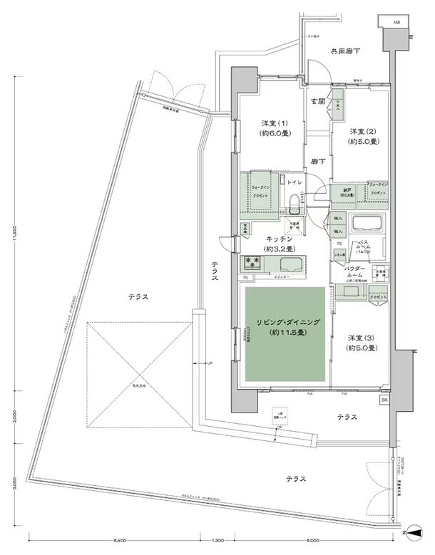
- 専有面積
-
67.38㎡~80.74㎡
- 間取り
-
2LDK+S(納戸)~4LDK
間取りを見る(9件)
- 販売スケジュール
-
先着順受付

