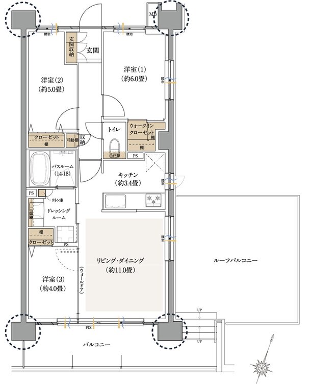
ウエリスサーパス中浦和 間取り Aタイプ
タイプ

Aタイプ

間取り

3LDK+WIC+N

専有面積

71.98㎡

バルコニー面積

9.85㎡

  • 可変式間仕切り
  • ウォークインクローゼット
  • 浴室に窓
  • 西向き
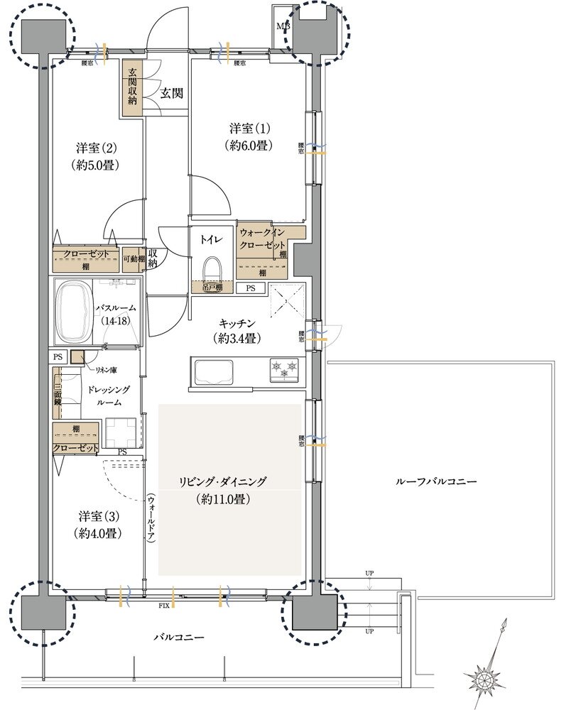
ウエリスサーパス中浦和 間取り Aタイプ(メニュープラン)
タイプ

Aタイプ(メニュープラン)

間取り

2LDK+WIC+WTC+N

専有面積

71.98㎡

バルコニー面積

9.85㎡

  • ウォークインクローゼット
  • 浴室に窓
  • 西向き
ウエリスサーパス中浦和 間取り Kタイプ
タイプ

Kタイプ

間取り

2LDK+S+2WIC

専有面積

66.70㎡

バルコニー面積

10.35㎡

  • 可変式間仕切り
  • ウォークインクローゼット
  • 南向き
ウエリスサーパス中浦和 間取り Trタイプ
タイプ

Trタイプ

間取り

3LDK+WIC

専有面積

66.70㎡

バルコニー面積

13.83㎡

備考

ルーフバルコニー面積:25.25㎡

  • 可変式間仕切り
  • ウォークインクローゼット
  • 2面バルコニー
  • L字バルコニー
  • ルーフバルコニー
  • 南向き

このページの一番上へ