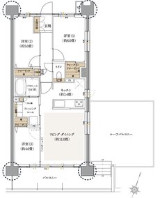
間取り
この物件の詳細情報に戻る2LDK掲載2件
※S=サービスルーム(納戸) WIC=ウォークインクローゼット WTC=ウォークスルークローゼット N=納戸
※掲載の間取り図面は開発段階のもので、設計・施工上の都合により変更する場合があります。
※方位記号は若干誤差があります。正確な方位については設計図書でご確認ください。
関連する他の物件も見てみる
特徴
- 子どもと暮らす(66)
- ウォークインクローゼット(63)
- 対面キッチン(62)
- I型キッチン(61)
- 可変式間仕切り(57)
- 複層ガラス(ペアガラス)(54)
- 食器洗い乾燥機(食洗機)(53)
- 一人暮らし・二人暮らし向け(50)
- 平置き駐車場(49)
- 宅配ボックス(48)
- 浴室暖房換気乾燥機(48)
- ハンズフリーキー(44)
- ペット可(41)
- 販売前・販売予定(37)
- エコマンション(34)
- 24時間ゴミ出し可能(33)
- ZEHマンション(31)
- 防災設備(29)
- 南向き(26)
- アウトフレーム工法(25)
- 2面バルコニー(24)
- ペット共用施設(23)
- 省エネ対応(19)
- 西向き(19)
- ラウンジ(18)
- 電気自動車対応(15)
- ディスポーザー(12)
- 浴室に窓(10)
- L字バルコニー(9)
- ルーフバルコニー(5)
地域
間取り
不動産会社
駅
沿線

