- 価格
-
価格未定(予定)
- 専有面積
-
47.31㎡~92.25㎡
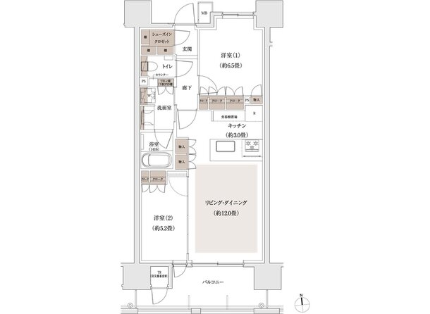
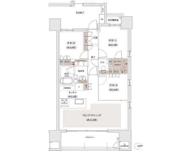
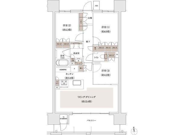
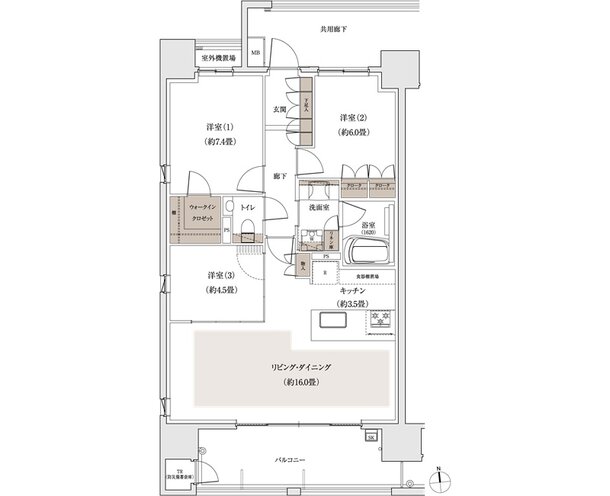
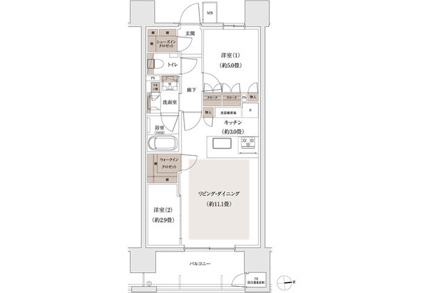
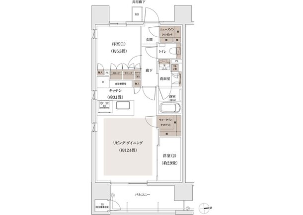
- 間取り
-
1LDK~3LDK
間取りを見る(8件)
- 販売スケジュール
-
2026年3月上旬販売予定

