- 価格
-
8590万円~1億400万円
月々の支払い額を見る
- 専有面積
-
66.30㎡~71.50㎡
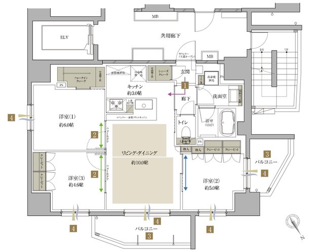
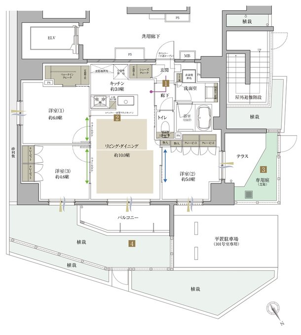
- 間取り
-
2LDK+S(納戸)・3LDK
間取りを見る(3件)
- 販売スケジュール
-
先着順申込受付中

