- 価格
-
価格未定(予定)
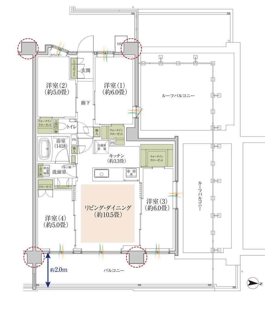
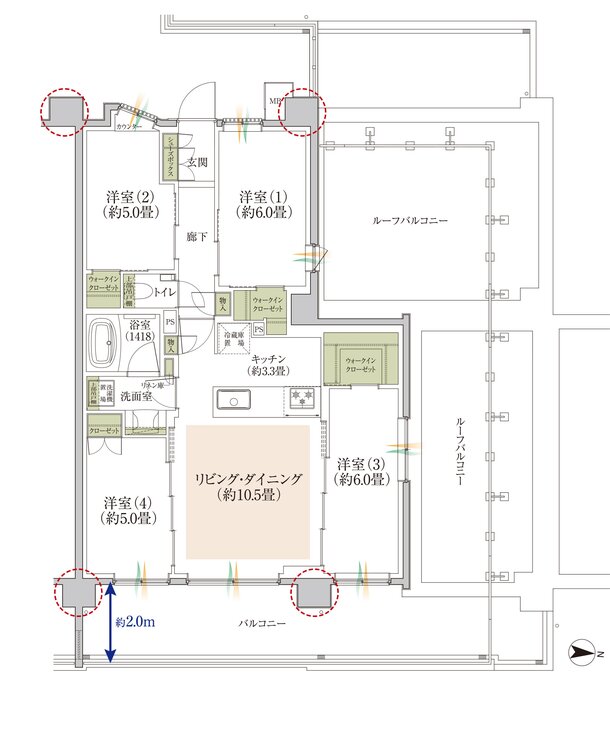
- 専有面積
-
53.62㎡~79.47㎡
- 間取り
-
1LDK+S(納戸)~4LDK
間取りを見る(10件)
- 販売スケジュール
-
販売開始予定時期:2025年11月上旬

