- 価格
-
5398万円~7648万円
月々の支払い額を見る
- 専有面積
-
53.84㎡~70.23㎡
- 間取り
-
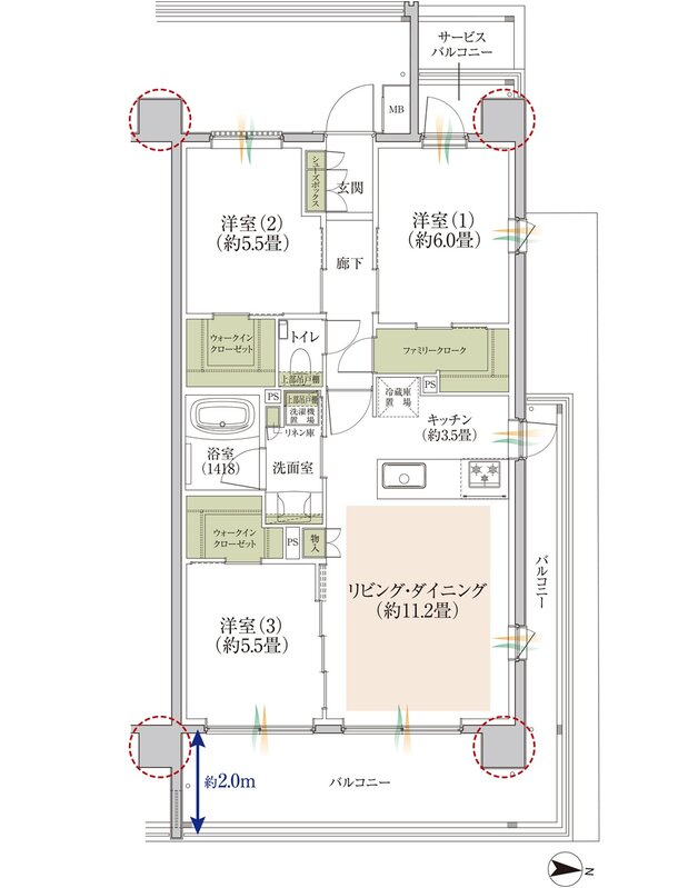
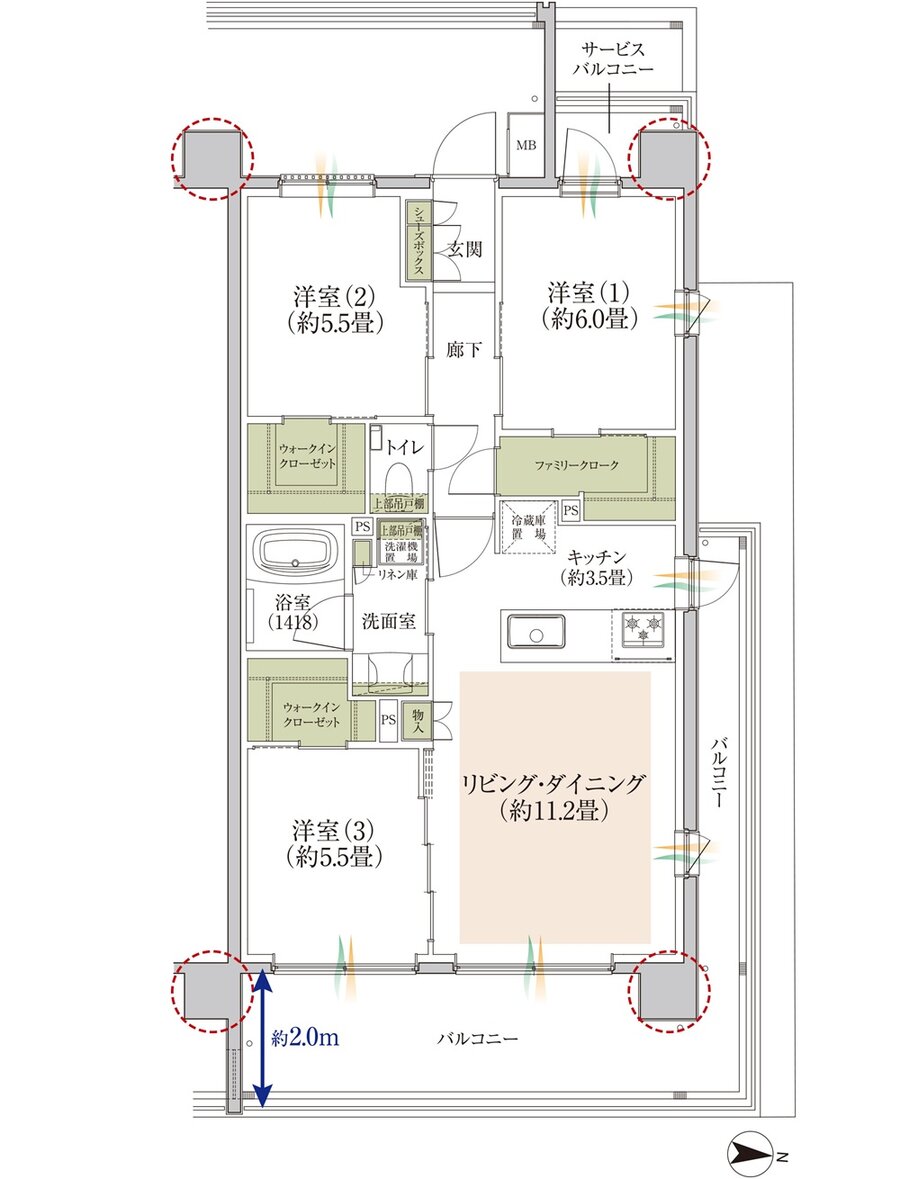
1LDK+S(納戸)~3LDK
間取りを見る(10件)
- 販売スケジュール
-
〇先着順申込み受付中

