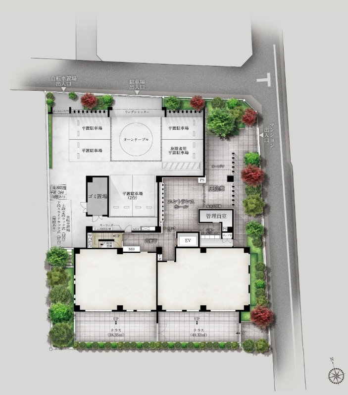
- 価格
-
2億900万円~4億6900万円
月々の支払い額を見る
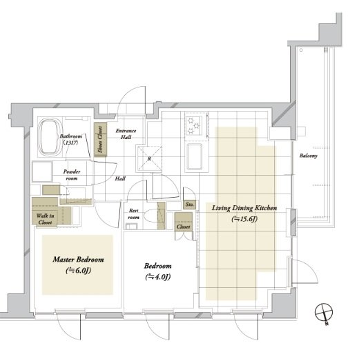
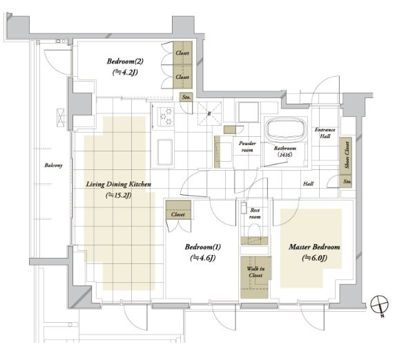
- 専有面積
-
56.28㎡~90.22㎡
- 間取り
-
2LDK・3LDK
間取りを見る(3件)
- 販売スケジュール
-
○先着順申込み受付中

