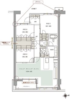
間取り
この物件の詳細情報に戻る2LDK掲載2件
3LDK掲載4件
UGOCLO:可動収納ユニット WIC:ウォークインクローゼット SIC:シューズインクローゼット
※掲載の図面は設計段階の図面を基に描いたもので実際とは異なります。また施工上の理由および改良のため変更することがございます。最新の図面集でご確認ください。
関連する他の物件も見てみる
特徴
- 子どもと暮らす(188)
- 対面キッチン(181)
- I型キッチン(179)
- ウォークインクローゼット(173)
- 一人暮らし・二人暮らし向け(164)
- 床暖房(162)
- 可変式間仕切り(144)
- 玄関からリビングが見えない間取り(136)
- シューズインクローゼット(132)
- 平置き駐車場(113)
- 浴室暖房換気乾燥機(113)
- 宅配ボックス(112)
- 複層ガラス(ペアガラス)(101)
- 高級マンション・ハイグレードマンション(98)
- ハンズフリーキー(96)
- 2面バルコニー(94)
- モデルルーム公開中(93)
- ZEHマンション(90)
- 24時間ゴミ出し可能(88)
- 南向き(88)
- 駅近(駅徒歩5分以内・駅直結)(81)
- 防災設備(78)
- 東向き(77)
- 二重床/二重天井(74)
- 大規模マンション(73)
- ディスポーザー(70)
- ラウンジ(61)
- アウトフレーム工法(48)
- ルーフバルコニー(46)
- 省エネ対応(43)
- 第一種低層住居専用地域(28)
- 低層マンション(20)
- 中庭(パティオ)(15)
- 駐車場100%以上(6)
地域
間取り
価格帯
不動産会社
駅
沿線

