- 価格
-
9098万円~1億3298万円
月々の支払い額を見る
- 専有面積
-
69.02㎡~90.09㎡
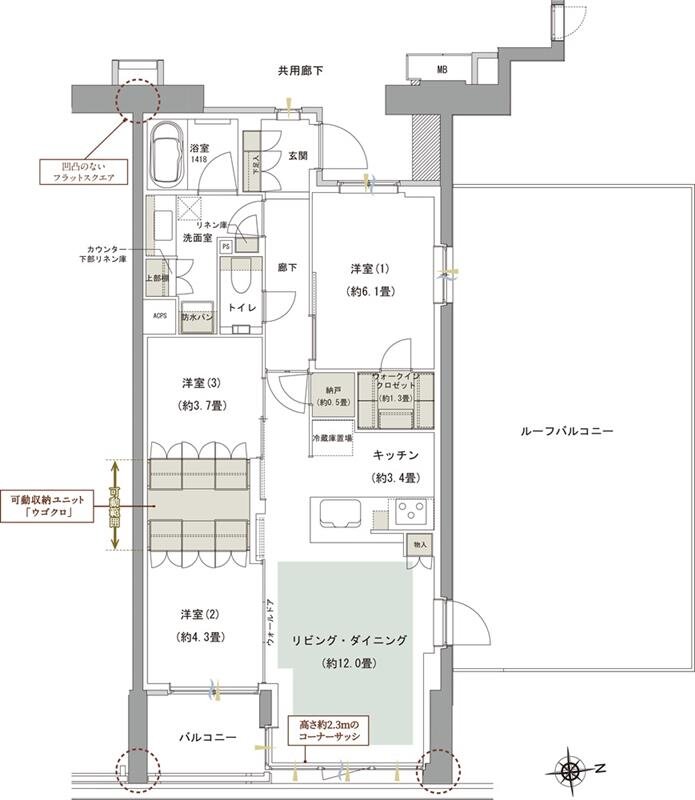
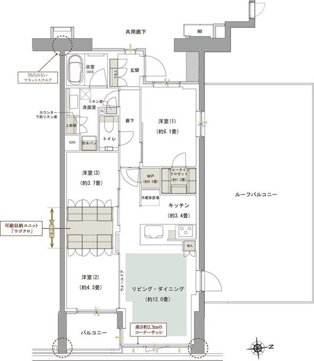
- 間取り
-
3LDK~4LDK
間取りを見る(6件)
- 販売スケジュール
-
先着順申込み受付中

