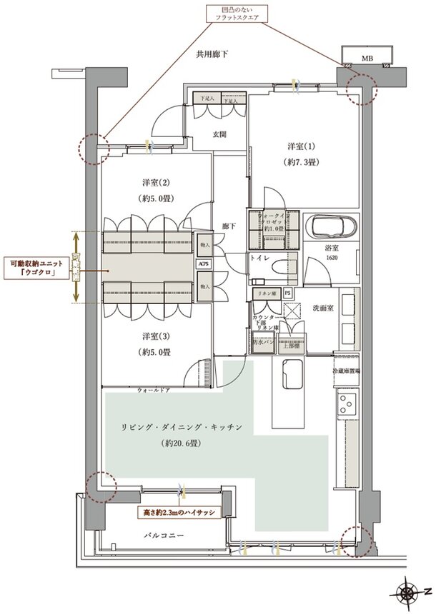
ルネグラン上石神井 間取り H1g TYPE
タイプ

H1g TYPE

間取り

2LDK+SR+UGOCLO+MC

専有面積

68.40㎡

バルコニー面積

11.92㎡

価格

8698万円

  • 可変式間仕切り
  • 東向き
ルネグラン上石神井 間取り B5 TYPE
タイプ

B5 TYPE

間取り

3LDK+WIC+N

専有面積

67.55㎡

バルコニー面積

11.41㎡

価格

9298万円

  • 可変式間仕切り
  • ウォークインクローゼット
  • 南向き
ルネグラン上石神井 間取り E TYPE
タイプ

E TYPE

間取り

3LDK+UGOCLO+WIC

専有面積

90.09㎡

バルコニー面積

12.92㎡

価格

1億3298万円

  • ウォークインクローゼット
  • 東向き
ルネグラン上石神井 間取り D TYPE
タイプ

D TYPE

間取り

4LDK+UGOCLO+2WIC+SIC

専有面積

84.20㎡

バルコニー面積

12.21㎡

価格

1億2998万円

備考

サービスバルコニー面積 : 3.96㎡

  • 玄関からリビングが見えない間取り
  • 可変式間仕切り
  • ウォークインクローゼット
  • シューズインクローゼット
  • 2面バルコニー
  • 南向き
ルネグラン上石神井 間取り H2pr TYPE
タイプ

H2pr TYPE

間取り

3LDK+UGOCLO+WIC+N

専有面積

72.27㎡

バルコニー面積

4.33㎡

価格

1億498万円

備考

ルーフバルコニー面積:47.13㎡

  • 玄関からリビングが見えない間取り
  • 可変式間仕切り
  • ウォークインクローゼット
  • 2面バルコニー
  • ルーフバルコニー
  • 東向き
ルネグラン上石神井 間取り H1 TYPE
タイプ

H1 TYPE

間取り

2LDK+SR+UGOCLO+MC

専有面積

68.40㎡

バルコニー面積

11.92㎡

価格

8998万円

  • 可変式間仕切り
  • 東向き

このページの一番上へ