- 価格
-
1億5000万円台~5億5000万円台(100万円単位)(予定)
月々の支払い額を見る
- 専有面積
-
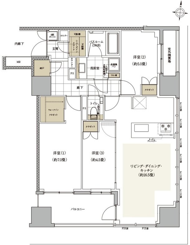
57.93㎡~115.92㎡
- 間取り
-
2LDK,3LDK
間取りを見る(4件)
- 販売スケジュール
-
2025年11月上旬販売開始予定

