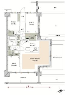
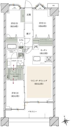
間取り
この物件の詳細情報に戻る3LDK掲載13件
FC:ファミリークロゼット BW:ビッグウォークインクロゼット SC:シューズインクロゼット W:ウォークインクローゼット R:ルーフバルコニー T:テラス PG:プライベートガーデン
※掲載の間取図は計画段階の図面を基に描き起こしたもので簡略化して表現されています。行政指導及び施工上の理由等のため、今後内容が変更になる場合があります。詳しくは図面集にてご確認ください。
※リビング・ダイニングの畳数表記については、リビング・ダイニングの扉より内側の面積からキッチンの面積を差し引いたもので算出しております。
関連する他の物件も見てみる
特徴
- 子どもと暮らす(170)
- 対面キッチン(167)
- I型キッチン(164)
- ウォークインクローゼット(156)
- 床暖房(151)
- 玄関からリビングが見えない間取り(133)
- 複数沿線利用可能(130)
- 可変式間仕切り(127)
- 食器洗い乾燥機(食洗機)(118)
- 宅配ボックス(107)
- 販売前・販売予定(106)
- 浴室暖房換気乾燥機(102)
- 平置き駐車場(98)
- 高級マンション・ハイグレードマンション(94)
- 複層ガラス(ペアガラス)(94)
- 南向き(90)
- ZEHマンション(89)
- 2面バルコニー(87)
- ペット可(86)
- 24時間ゴミ出し可能(83)
- 東向き(71)
- 西向き(70)
- 大規模マンション(70)
- 二重床/二重天井(64)
- ラウンジ(63)
- 出入口が2か所以上あるキッチン(54)
- ペット共用施設(53)
- ルーフバルコニー(40)
- テラス(34)
- 北向き(29)
- 広いリビング(29)
- L字バルコニー(23)
- アイランドキッチン(23)
- 専用庭(19)
- オープンキッチン(7)
- メゾネットタイプ(5)
- 浴室テレビ・オーディオ(1)
地域
間取り
価格帯
不動産会社
駅
沿線

