- 価格
-
価格未定(予定)
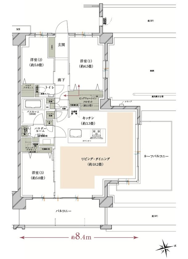
- 専有面積
-
69.54㎡~91.63㎡
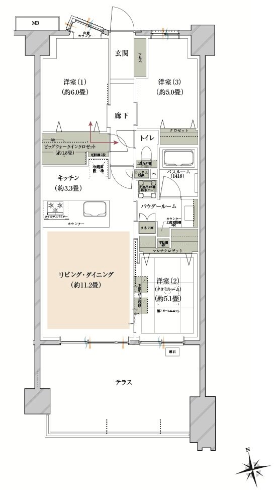
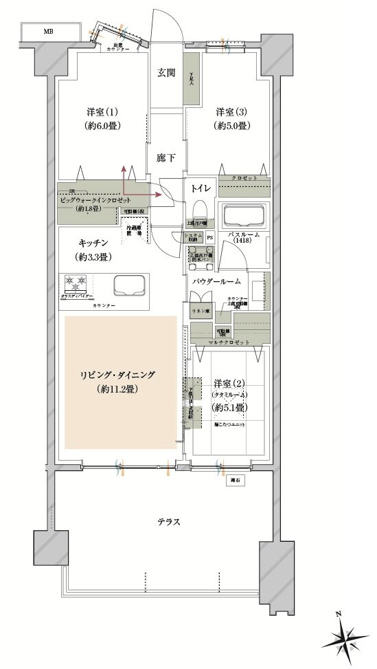
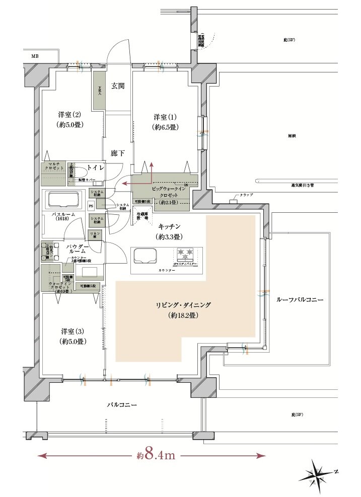
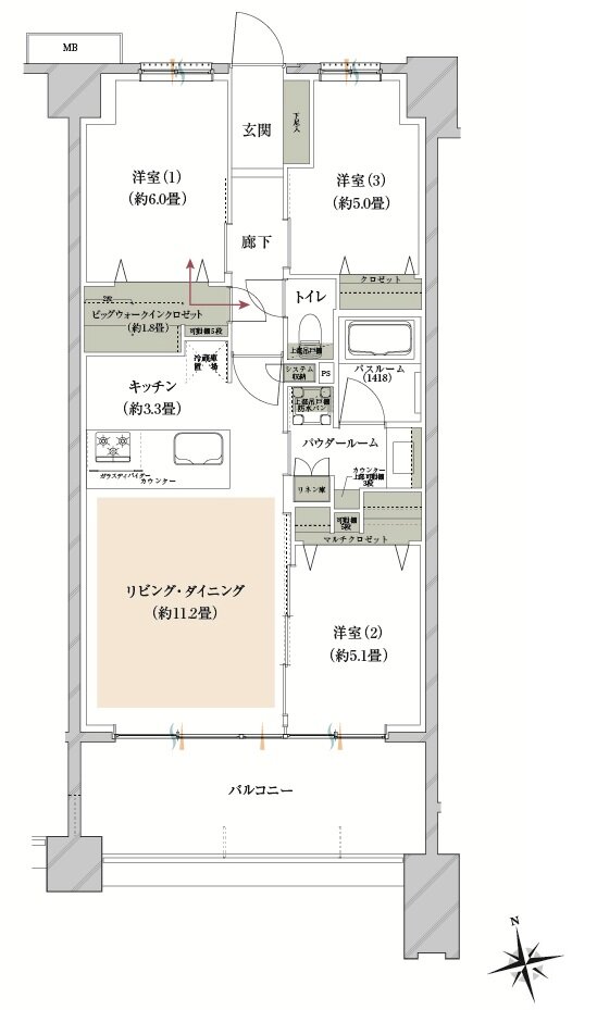
- 間取り
-
3LDK
間取りを見る(10件)
- 販売スケジュール
-
2026年1月中旬 販売開始予定

