- 価格
-
価格未定(予定)
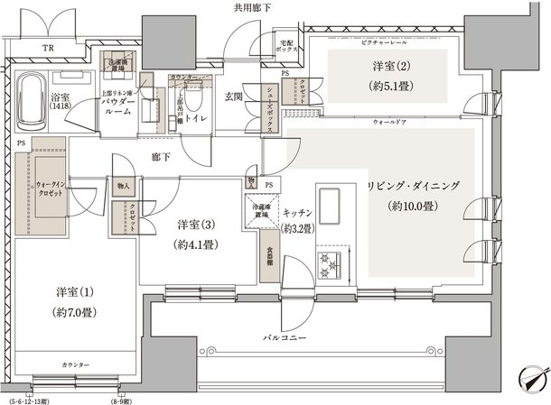
- 専有面積
-
53.9㎡~75.02㎡
- 間取り
-
2LDK~3LDK
間取りを見る(6件)
- 販売スケジュール
-
2025年12月上旬 販売開始予定

