- 価格
-
5298万円~6298万円
月々の支払い額を見る
- 専有面積
-
68.17㎡~75.52㎡
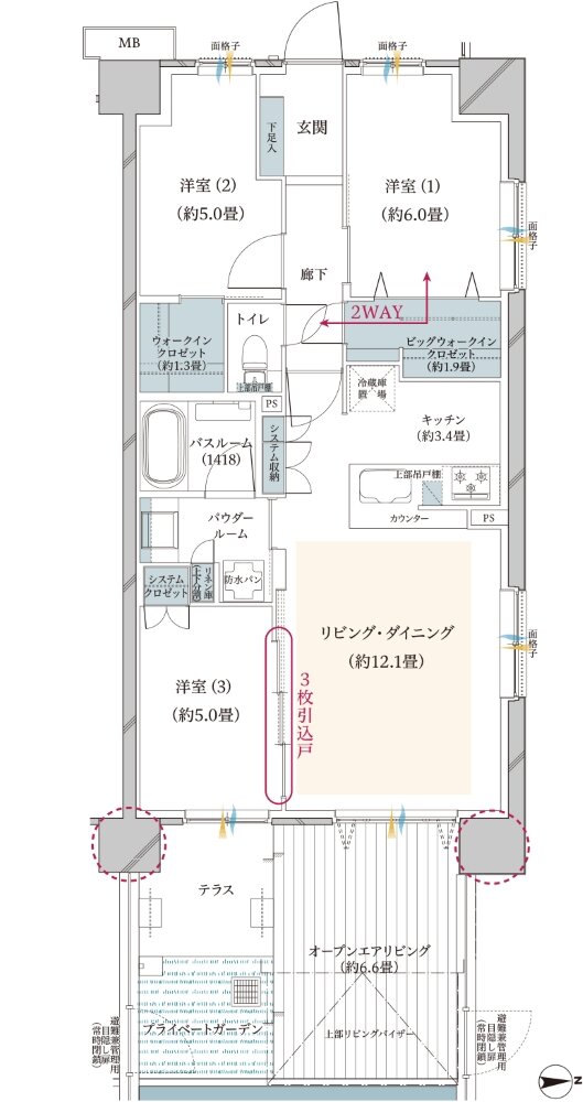
- 間取り
-
3LDK
間取りを見る(10件)
- 販売スケジュール
-
先着順申込受付中

