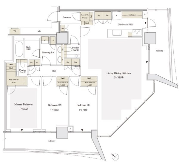
セントラルガーデン月島 ザ タワー 間取り 126Asタイプ
タイプ

126Asタイプ

間取り

3LDK+3WIC+SIC+TR

専有面積

126.45㎡

バルコニー面積

26.78㎡

備考

※専有面積に専有トランクルーム面積 0.60㎡含む

  • 玄関からリビングが見えない間取り
  • 広いリビング
  • ウォークインクローゼット
  • シューズインクローゼット
  • 出入口が2か所以上あるキッチン
  • 2面バルコニー
  • トランクルーム
  • 南東向き
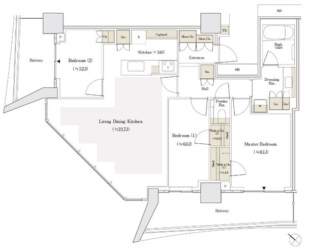
セントラルガーデン月島 ザ タワー 間取り 91Bwタイプ
タイプ

91Bwタイプ

間取り

3LDK+2WIC+TR

専有面積

91.96㎡

バルコニー面積

20.67㎡

備考

※専有面積に専有トランクルーム面積 0.30㎡含む

  • 玄関からリビングが見えない間取り
  • 広いリビング
  • ウォークインクローゼット
  • 2面バルコニー
  • トランクルーム
セントラルガーデン月島 ザ タワー 間取り 74Anwタイプ
タイプ

74Anwタイプ

間取り

3LDK+WIC+P+TR

専有面積

74.12㎡

バルコニー面積

16.74㎡

備考

※専有面積に専有トランクルーム面積 0.30㎡含む

  • 玄関からリビングが見えない間取り
  • ウォークインクローゼット
  • トランクルーム
セントラルガーデン月島 ザ タワー 間取り 64Anwタイプ
タイプ

64Anwタイプ

間取り

2LDK+WIC+SIC+TR

専有面積

64.46㎡

バルコニー面積

15.01㎡

備考

※専有面積に専有トランクルーム面積 0.30㎡含む

  • ウォークインクローゼット
  • シューズインクローゼット
  • トランクルーム
セントラルガーデン月島 ザ タワー 間取り 57Cswタイプ
タイプ

57Cswタイプ

間取り

2LDK+WIC+TR

専有面積

57.41㎡

バルコニー面積

12.63㎡

備考

※専有面積に専有トランクルーム面積 0.30㎡含む

  • ウォークインクローゼット
  • トランクルーム
  • 南西向き
セントラルガーデン月島 ザ タワー 間取り 43Bnwタイプ
タイプ

43Bnwタイプ

間取り

1LDK+SIC+TR

専有面積

43.67㎡

バルコニー面積

10.42㎡

備考

※専有面積に専有トランクルーム面積 0.30㎡含む

  • シューズインクローゼット
  • トランクルーム

このページの一番上へ