- 価格
-
7900万円台~1億5400万円台(100万円単位)(予定)
月々の支払い額を見る
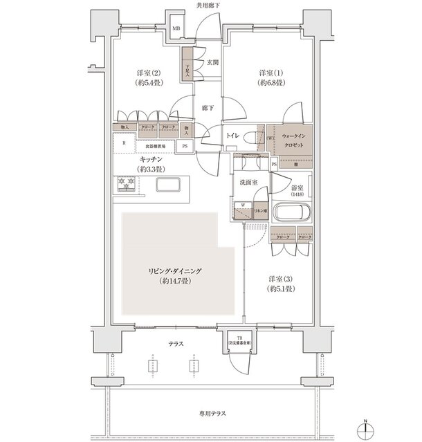
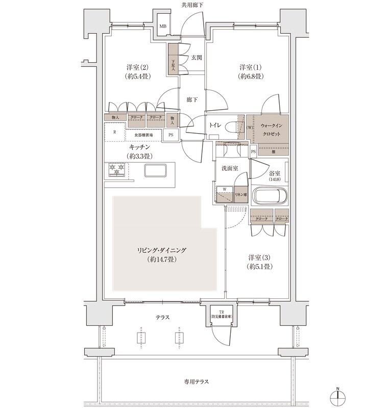
- 専有面積
-
67.21㎡~88.53㎡
- 間取り
-
3LDK
間取りを見る(11件)
- 販売スケジュール
-
2025年12月12日販売予定

