- 価格
-
価格未定(予定)
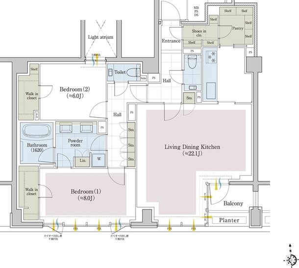
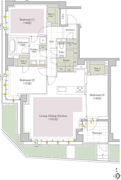
- 専有面積
-
100.03㎡、104.66㎡
- 間取り
-
2LDK・3LDK
間取りを見る(2件)
- 販売スケジュール
-
2025年10月下旬 販売開始予定

