- 価格
-
3870万円~7960万円
月々の支払い額を見る
- 専有面積
-
65.28㎡~109.05㎡
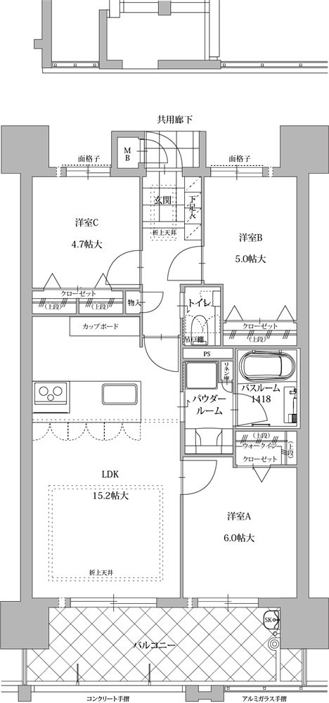
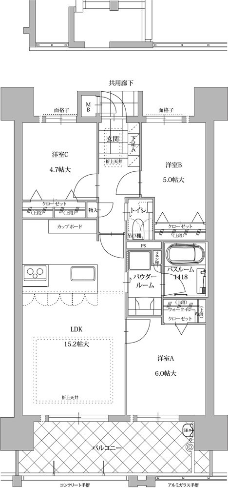
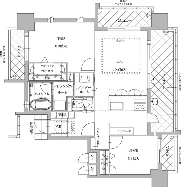
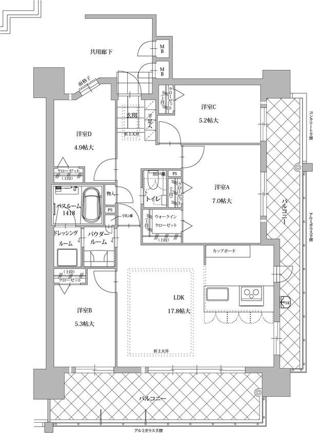
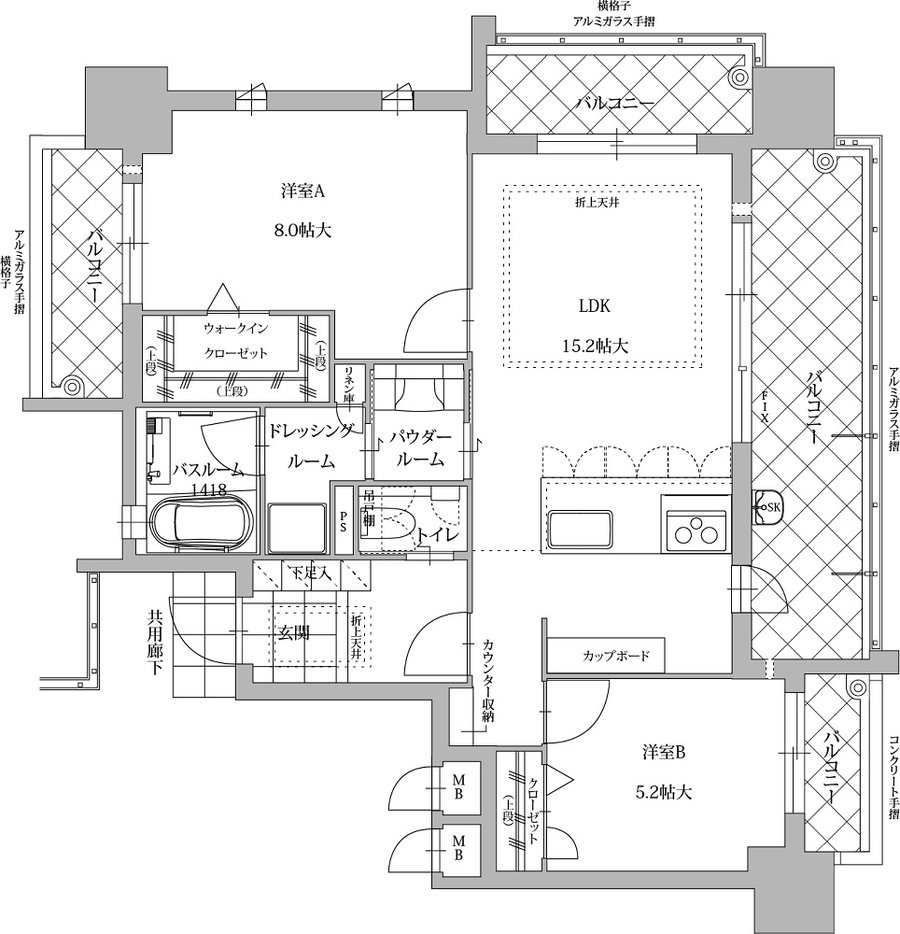
- 間取り
-
2LDK~4LDK
間取りを見る(3件)
- 販売スケジュール
-
先着順申込受付中

