間取り
この物件の詳細情報に戻る3LDK掲載6件
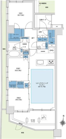
WIC:ウォークインクローゼット、SIC:シューズインクローゼット、S:サービスルーム(納戸)
※掲載の間取りは設計段階のもので、今後変更になる可能性がございます。
関連する他の物件も見てみる
特徴
- 子どもと暮らす(188)
- 対面キッチン(182)
- I型キッチン(181)
- ウォークインクローゼット(173)
- 一人暮らし・二人暮らし向け(161)
- 床暖房(158)
- 可変式間仕切り(138)
- 複数沿線利用可能(132)
- シューズインクローゼット(129)
- 玄関からリビングが見えない間取り(127)
- 食器洗い乾燥機(食洗機)(127)
- 浴室暖房換気乾燥機(112)
- 平置き駐車場(111)
- 宅配ボックス(108)
- 複層ガラス(ペアガラス)(101)
- 高級マンション・ハイグレードマンション(99)
- ハンズフリーキー(95)
- モデルルーム公開中(94)
- ペット可(93)
- 2面バルコニー(91)
- 南向き(84)
- 24時間ゴミ出し可能(83)
- 西向き(77)
- 二重床/二重天井(71)
- ルーフバルコニー(42)
- テラス(35)
- 南向き中心(28)
- 浴室に窓(25)
- ポーチ(9)
地域
間取り
価格帯
不動産会社
駅
沿線

