- 価格
-
5990万円~8580万円
月々の支払い額を見る
- 専有面積
-
52.29㎡~73.55㎡
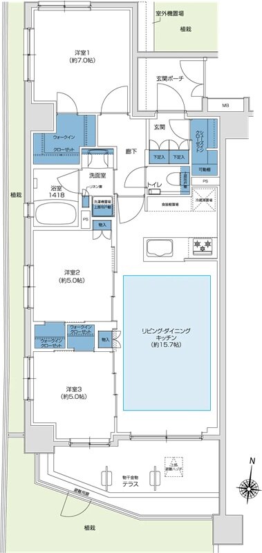
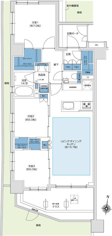
- 間取り
-
1LDK+2S~3LDK
間取りを見る(6件)
- 販売スケジュール
-
第1期15次・第2期(1次・3次・5次)先着順申込受付中

