リーフシティ市川 ザ・タワー 間取り S58A1タイプ
タイプ

S58A1タイプ

間取り

2LDK+WIC+SIC

専有面積

58.88㎡

バルコニー面積

11.78㎡

備考

【お詫びと訂正】掲載のタイプのバルコニー面積に誤りがあったため、お詫びしますとともに以下の通り訂正させていただきます。
●バルコニー面積<誤>11.82㎡ ⇒<正>11.78㎡

  • ウォークインクローゼット
  • シューズインクローゼット
  • 南西向き
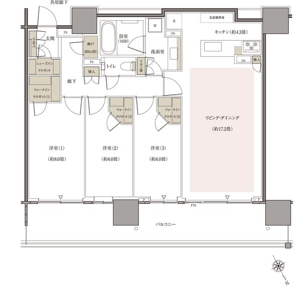
リーフシティ市川 ザ・タワー 間取り S72F1タイプ
タイプ

S72F1タイプ

間取り

3LDK+2WIC+N

専有面積

72.90㎡

バルコニー面積

11.85㎡

備考

サービススペース面積:1.60㎡
【お詫びと訂正】掲載のタイプのバルコニー面積に誤りがあったため、お詫びしますとともに以下の通り訂正させていただきます。
●バルコニー面積<誤>11.82㎡[3~27階] ⇒<正>11.85㎡

  • 玄関からリビングが見えない間取り
  • 可変式間仕切り
  • ウォークインクローゼット
  • 南西向き
リーフシティ市川 ザ・タワー 間取り S72F2タイプ
タイプ

S72F2タイプ

間取り

3LDK+2WIC+N

専有面積

72.90㎡

バルコニー面積

11.82㎡

備考

サービススペース面積:1.60㎡

  • 玄関からリビングが見えない間取り
  • 可変式間仕切り
  • ウォークインクローゼット
  • 南西向き
リーフシティ市川 ザ・タワー 間取り S69Aタイプ
タイプ

S69Aタイプ

間取り

3LDK+WIC+SIC

専有面積

69.08㎡

バルコニー面積

13.95㎡

  • ウォークインクローゼット
  • シューズインクローゼット
  • 南西向き
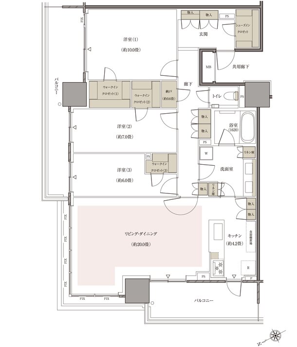
リーフシティ市川 ザ・タワー 間取り P-SE129Oタイプ
タイプ

P-SE129Oタイプ

間取り

3LDK+3WIC+SIC+WIP+N

専有面積

129.69㎡

バルコニー面積

29.07㎡

備考

【1】二面採光の南西角住戸
【2】L型コーナーサッシを採用したゆとりあるリビング
【3】全洋室に大型のウォークインクロゼット
【4】コミュニケーションが広がるアイランド型キッチン
【5】洗面室には2人同時に使える洗面ダブルボウル
【6】1822のワイドなバスルーム

  • 玄関からリビングが見えない間取り
  • 広いリビング
  • ウォークインクローゼット
  • シューズインクローゼット
  • 2面バルコニー
  • 南東向き
リーフシティ市川 ザ・タワー 間取り P-S110Jタイプ
タイプ

P-S110Jタイプ

間取り

3LDK+3WIC+SIL+SIC+WIP+N

専有面積

110.61㎡

バルコニー面積

21.74㎡

備考

【1】アウトドア用品なども収納可能なシューズインクロゼット
【2】洗面室には2人同時に使える洗面ダブルボウル
【3】約1.2畳ある大型の納戸
【4】収納力たっぷりなウォークインパントリー
【5】全洋室に大型のウォークインクロゼット
【6】家具の配置がしやすいアウトフレーム工法

  • 玄関からリビングが見えない間取り
  • 広いリビング
  • シューズインクローゼット
  • 南西向き

このページの一番上へ