- 価格
-
4530万円~5380万円
月々の支払い額を見る
- 専有面積
-
53.28㎡~60.21㎡
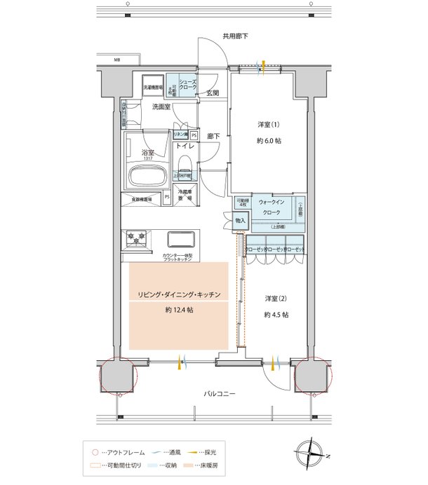
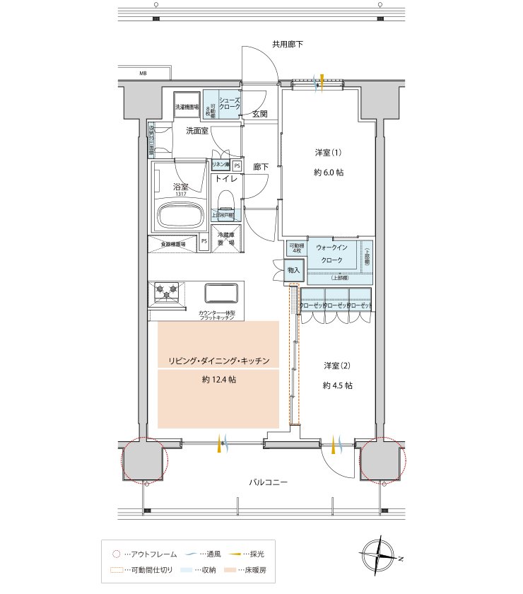
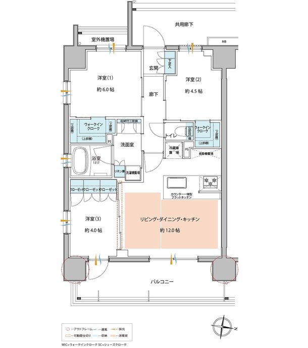
- 間取り
-
2LDK・3LDK
間取りを見る(3件)
- 販売スケジュール
-
先着順申込受付中

