- 価格
-
価格未定(予定)
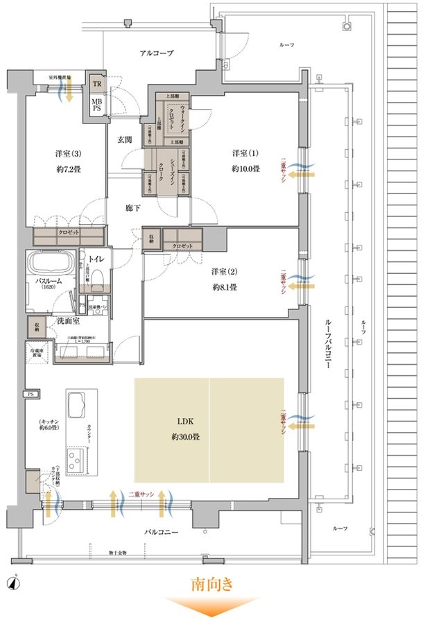
- 専有面積
-
80.52㎡~119.14㎡
- 間取り
-
3LDK・3LDK + N
間取りを見る(5件)
- 販売スケジュール
-
販売予定時期:2026年4月上旬

