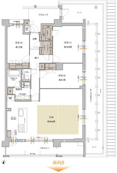
間取り
この物件の詳細情報に戻る※掲載の図面は、設計図を基に描き起こしたもので、官公庁の指導、施工上の都合等により多少変更となる場合がございます。あらかじめご了承ください。
関連する他の物件も見てみる
特徴
- 子どもと暮らす(67)
- I型キッチン(63)
- 対面キッチン(62)
- 一人暮らし・二人暮らし向け(59)
- ウォークインクローゼット(57)
- アルコーブ(49)
- 複数沿線利用可能(48)
- 平置き駐車場(44)
- モデルルーム公開中(38)
- 販売前・販売予定(35)
- 床暖房(35)
- 南向き(35)
- 可変式間仕切り(35)
- 2面バルコニー(35)
- シューズインクローゼット(32)
- 玄関からリビングが見えない間取り(32)
- 食器洗い乾燥機(食洗機)(30)
- ZEHマンション(29)
- 浴室暖房換気乾燥機(28)
- ハンズフリーキー(27)
- 複層ガラス(ペアガラス)(24)
- 広いリビング(21)
- エコマンション(20)
- 出入口が2か所以上あるキッチン(20)
- 省エネ対応(19)
- 高級マンション・ハイグレードマンション(18)
- 全戸南向き(18)
- 即入居可能(16)
- ディスポーザー(12)
- ルーフバルコニー(11)
- アイランドキッチン(8)
- トランクルーム(5)
地域
間取り
価格帯
不動産会社
駅
沿線

