間取り
この物件の詳細情報に戻る3LDK掲載6件
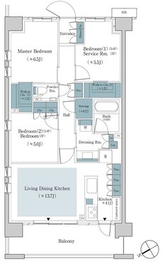
※SR=サービスルーム WIC=ウォークインクロゼット SIC=シューズインクロゼット WIP=ウォークインパントリー WTC=ウォークスルークロゼット STC=シューズスルークロゼット S=納戸 MC=マルチクロゼット
※掲載の間取り図面は設計段階のもので、変更になる場合があります。
※リビング・ダイニング・キッチン部分の畳数には、冷蔵庫置場・食器棚置場が含まれています。
※住戸により仕様・形状が異なる場合がございます。
関連する他の物件も見てみる
特徴
- 子どもと暮らす(186)
- I型キッチン(180)
- 対面キッチン(180)
- ウォークインクローゼット(173)
- 一人暮らし・二人暮らし向け(163)
- 床暖房(158)
- 可変式間仕切り(135)
- 玄関からリビングが見えない間取り(129)
- 食器洗い乾燥機(食洗機)(128)
- シューズインクローゼット(127)
- 平置き駐車場(112)
- 販売前・販売予定(109)
- 高級マンション・ハイグレードマンション(100)
- ハンズフリーキー(93)
- 西向き(79)
- 大規模マンション(73)
- 東向き(70)
- ディスポーザー(67)
- 出入口が2か所以上あるキッチン(54)
- オンラインで相談・見学・商談可能(16)
地域
間取り
価格帯
不動産会社
駅
沿線

