- 価格
-
3240万円~6140万円
月々の支払い額を見る
- 専有面積
-
45.32㎡~80.01㎡
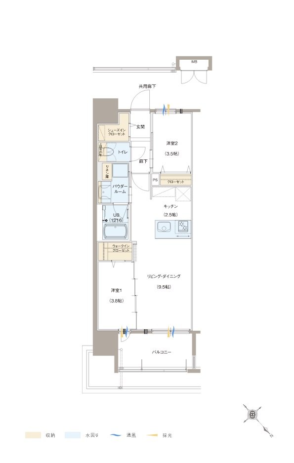
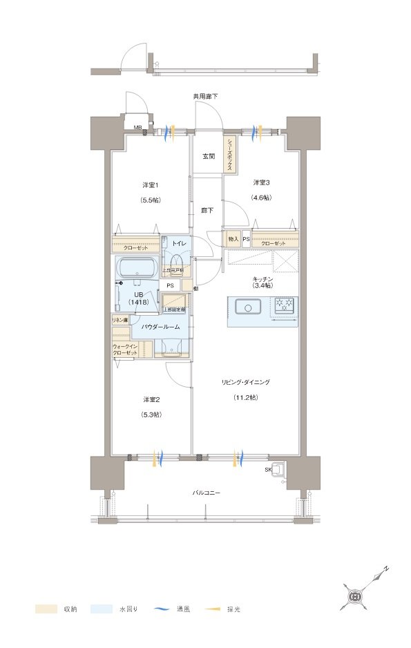
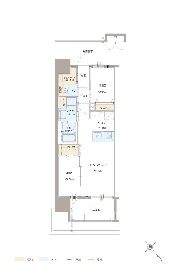
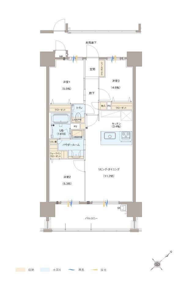
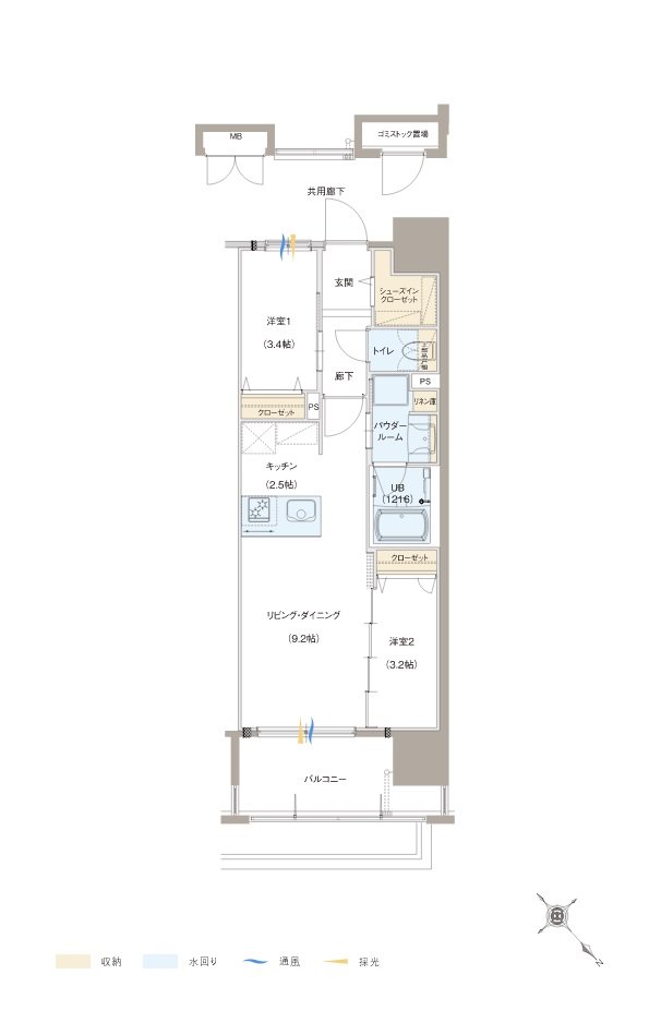
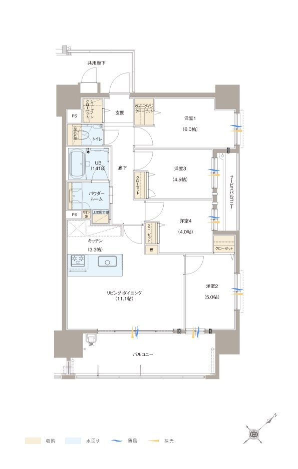
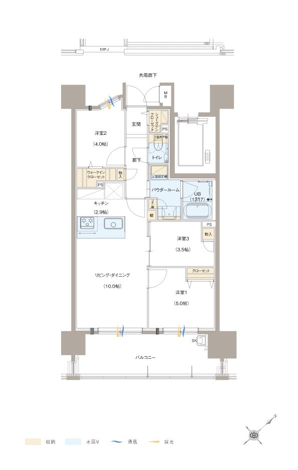
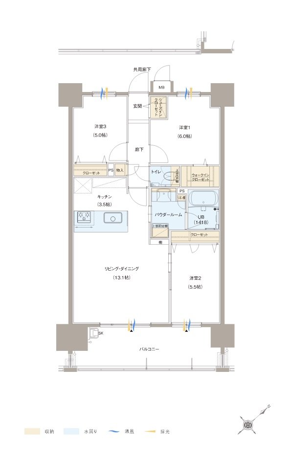
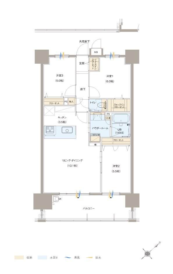
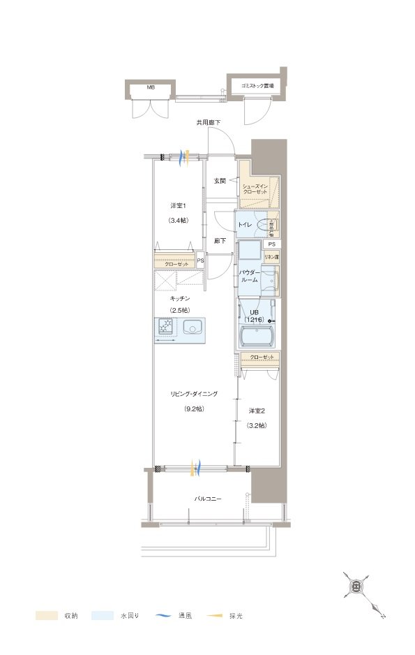
- 間取り
-
2LDK・3LDK・4LDK
間取りを見る(14件)
- 販売スケジュール
-
先着順申込受付中

