- 価格
-
5620万円~6560万円
月々の支払い額を見る
- 専有面積
-
66.12㎡~76.63㎡
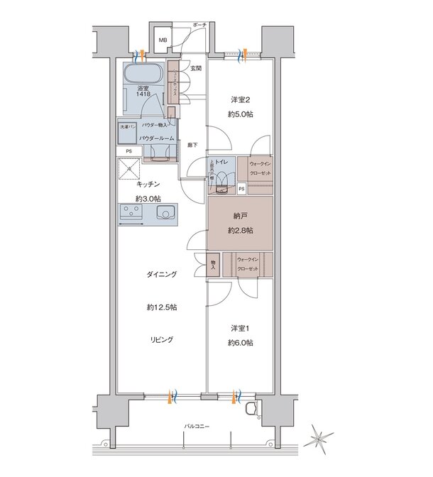
- 間取り
-
3LDK~4LDK
間取りを見る(5件)
- 販売スケジュール
-
〇登録受付期間:2025年10月18日~2025年11月3日 各日10:00~18:00 〇抽選日時:2025年11月4日 10:30

