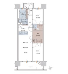
間取り
この物件の詳細情報に戻る2LDK掲載2件
3LDK掲載2件
※WIC=ウォークインクローゼット N=納戸 M=モアトリエ
※掲載の間取り図は計画段階に描き起こしたもので実際とは異なる場合があります。
関連する他の物件も見てみる
特徴
- 子どもと暮らす(107)
- 対面キッチン(100)
- I型キッチン(100)
- ウォークインクローゼット(89)
- 平置き駐車場(81)
- モデルルーム公開中(74)
- 食器洗い乾燥機(食洗機)(72)
- 浴室暖房換気乾燥機(71)
- 一人暮らし・二人暮らし向け(67)
- 可変式間仕切り(65)
- スロップシンク(57)
- ハンズフリーキー(57)
- 複層ガラス(ペアガラス)(51)
- 浴室に窓(47)
- 複数沿線利用可能(44)
- 駅近(駅徒歩5分以内・駅直結)(43)
- 南向き(37)
- 一括受電サービス(34)
- ラウンジ(32)
- 南東向き(30)
- 販売前・販売予定(28)
- フラット35(26)
- 南西向き(24)
- 24時間ゴミ出し可能(14)
- 大規模マンション(13)
- ポーチ(10)
- コンシェルジュサービス(4)
- ゲストルーム(4)
- 自走式駐車場(4)
- キッズルーム(3)
- フィットネスルーム(プール含む)(2)
- スカイデッキ(スカイテラス)(1)
- 冷蔵対応宅配ボックス(1)
地域
間取り
価格帯
不動産会社
駅
沿線

