- 価格
-
1億1000万円~1億3900万円
月々の支払い額を見る
- 専有面積
-
59.38㎡~74.18㎡
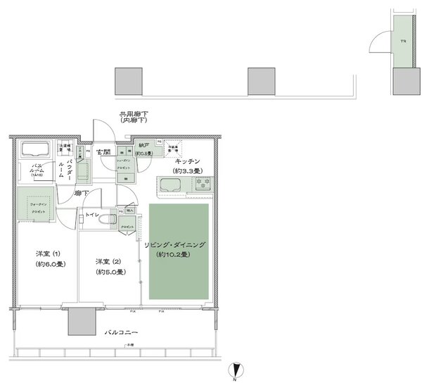
- 間取り
-
2LDK
間取りを見る(5件)
- 販売スケジュール
-
先着順受付

