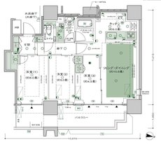
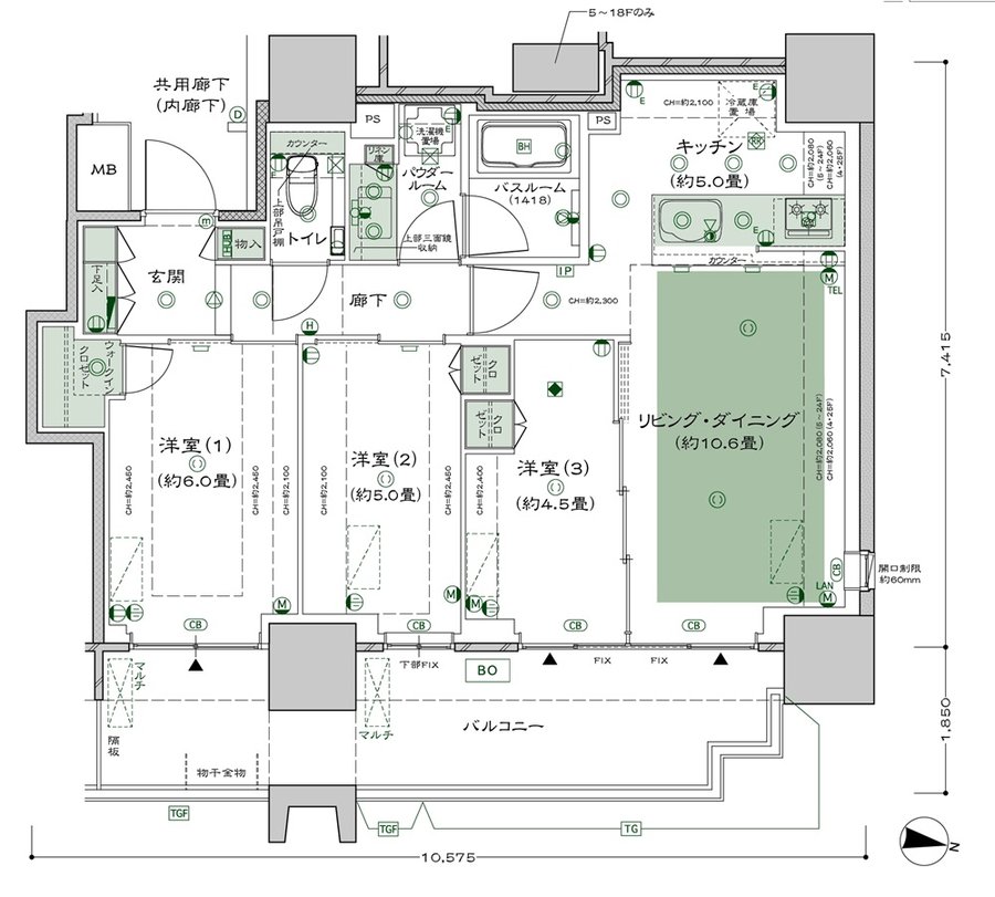
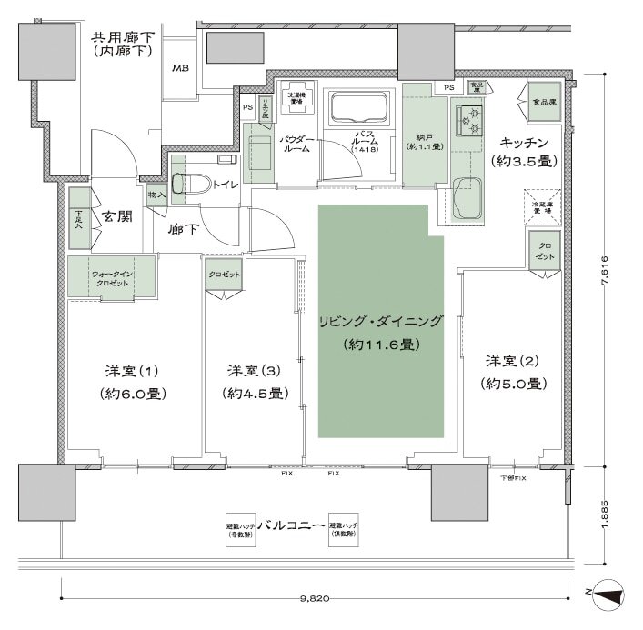
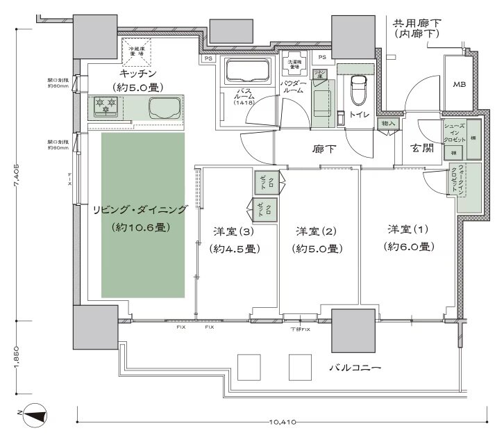
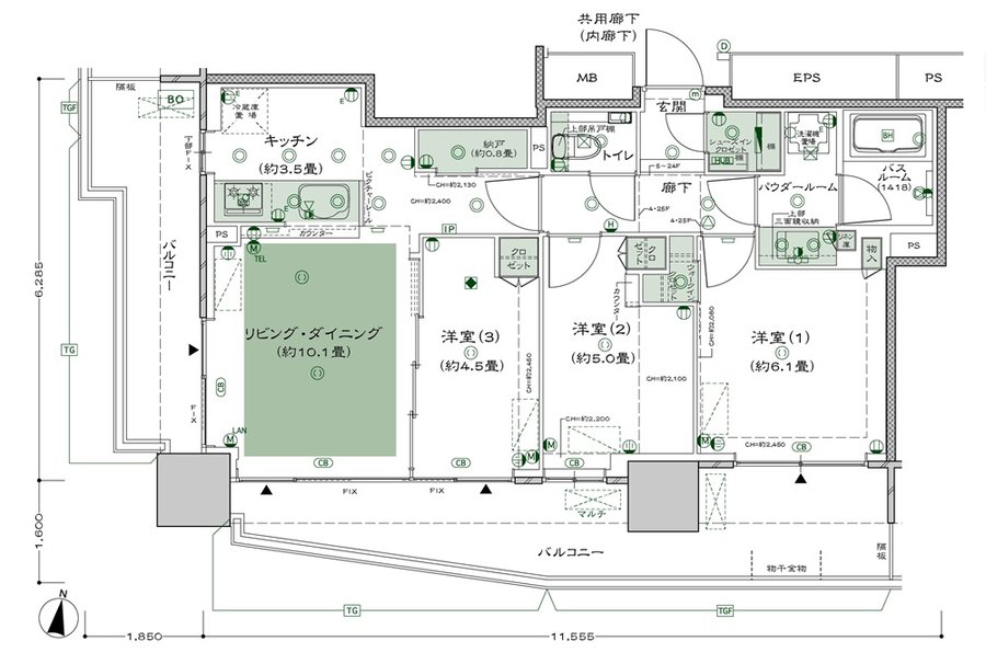
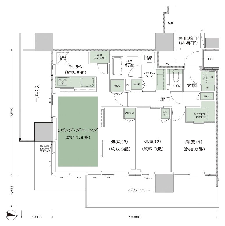
間取り
この物件の詳細情報に戻る2LDK掲載3件
3LDK掲載9件
N:納戸 WIC:ウォークインクロゼット SIC:シューズインクロゼット
※掲載の図面は、施工上の都合・改良等により多少変更する場合があります。あらかじめご了承ください。
※掲載の図面は本タイプの基本図面です。階数・列により間取りが一部異なる場合があります。詳細は図面集をご確認ください。
関連する他の物件も見てみる
特徴
- 子どもと暮らす(181)
- 対面キッチン(175)
- I型キッチン(174)
- ウォークインクローゼット(167)
- 一人暮らし・二人暮らし向け(163)
- 床暖房(158)
- 玄関からリビングが見えない間取り(136)
- 複数沿線利用可能(134)
- 可変式間仕切り(129)
- シューズインクローゼット(128)
- 食器洗い乾燥機(食洗機)(123)
- 高級マンション・ハイグレードマンション(116)
- 宅配ボックス(115)
- 浴室暖房換気乾燥機(109)
- 複層ガラス(ペアガラス)(99)
- ハンズフリーキー(97)
- モデルルーム公開中(97)
- 2面バルコニー(95)
- 南向き(94)
- 24時間ゴミ出し可能(89)
- ペット可(84)
- 西向き(79)
- 駅近(駅徒歩5分以内・駅直結)(77)
- ディスポーザー(77)
- 東向き(75)
- エコマンション(73)
- 防災設備(71)
- 二重床/二重天井(65)
- 大規模マンション(65)
- 内廊下(64)
- ペット共用施設(53)
- ルーフバルコニー(46)
- スロップシンク(39)
- 北向き(39)
- ミストサウナ(39)
- 耐震・免震・制振(34)
- バリアフリー(32)
- パーティールーム(30)
- タワーマンション・高層マンション(28)
- ハイサッシ(23)
- カスタマイズ/プランセレクト可能(19)
- 天井高(2.6m以上)(19)
- ワイドスパン(12)
- 遮音フローリング(7)
地域
間取り
価格帯
不動産会社
駅
沿線

