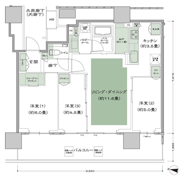
シティタワーズ板橋大山 ノースタワー/サウスタワー 間取り N-A-標準 type
タイプ

N-A-標準 type

間取り

3LDK+WIC+SIC

専有面積

67.51㎡

バルコニー面積

14.40㎡

  • 玄関からリビングが見えない間取り
  • 可変式間仕切り
  • ウォークインクローゼット
  • シューズインクローゼット
  • 西向き
  • フラットフロア
シティタワーズ板橋大山 ノースタワー/サウスタワー 間取り N-B-標準 type
タイプ

N-B-標準 type

間取り

3LDK+N+WIC+SIC

専有面積

65.07㎡

バルコニー面積

24.04㎡

  • 玄関からリビングが見えない間取り
  • 可変式間仕切り
  • ウォークインクローゼット
  • シューズインクローゼット
  • 2面バルコニー
  • 南向き
  • フラットフロア
シティタワーズ板橋大山 ノースタワー/サウスタワー 間取り N-D-標準 type
タイプ

N-D-標準 type

間取り

3LDK+WIC

専有面積

67.96㎡

バルコニー面積

15.44㎡

  • 玄関からリビングが見えない間取り
  • 可変式間仕切り
  • ウォークインクローゼット
  • 東向き
  • フラットフロア
シティタワーズ板橋大山 ノースタワー/サウスタワー 間取り N-C-標準 type
タイプ

N-C-標準 type

間取り

2LDK+WIC+SIC

専有面積

55.60㎡

バルコニー面積

23.90㎡

  • 可変式間仕切り
  • ウォークインクローゼット
  • シューズインクローゼット
  • 2面バルコニー
  • 南向き
  • フラットフロア
シティタワーズ板橋大山 ノースタワー/サウスタワー 間取り S-A type
タイプ

S-A type

間取り

3LDK+N+WIC+SIC

専有面積

71.9㎡

バルコニー面積

24.91㎡

  • 玄関からリビングが見えない間取り
  • 可変式間仕切り
  • ウォークインクローゼット
  • シューズインクローゼット
  • 2面バルコニー
  • 東向き
  • フラットフロア
シティタワーズ板橋大山 ノースタワー/サウスタワー 間取り S-B type
タイプ

S-B type

間取り

3LDK+N+WIC

専有面積

69.13㎡

バルコニー面積

19.30㎡

  • 玄関からリビングが見えない間取り
  • 可変式間仕切り
  • ウォークインクローゼット
  • 南向き
  • フラットフロア
シティタワーズ板橋大山 ノースタワー/サウスタワー 間取り S-C type
タイプ

S-C type

間取り

3LDK+N+WIC+SIC

専有面積

72.01㎡

バルコニー面積

24.91㎡

  • 玄関からリビングが見えない間取り
  • 可変式間仕切り
  • ウォークインクローゼット
  • シューズインクローゼット
  • 2面バルコニー
  • 西向き
  • フラットフロア
シティタワーズ板橋大山 ノースタワー/サウスタワー 間取り S-D type
タイプ

S-D type

間取り

3LDK+N+WIC

専有面積

68.52㎡

バルコニー面積

18.51㎡

  • 玄関からリビングが見えない間取り
  • 可変式間仕切り
  • ウォークインクローゼット
  • 西向き
  • フラットフロア
シティタワーズ板橋大山 ノースタワー/サウスタワー 間取り S-H type
タイプ

S-H type

間取り

3LDK+N+WIC

専有面積

66.94㎡

バルコニー面積

17.92㎡

  • 玄関からリビングが見えない間取り
  • 可変式間仕切り
  • ウォークインクローゼット
  • 東向き
  • フラットフロア
シティタワーズ板橋大山 ノースタワー/サウスタワー 間取り S-M type
タイプ

S-M type

間取り

3LDK+N+WIC

専有面積

69.02㎡

バルコニー面積

24.72㎡

  • 可変式間仕切り
  • ウォークインクローゼット
  • 2面バルコニー
  • 西向き
  • フラットフロア
シティタワーズ板橋大山 ノースタワー/サウスタワー 間取り S-F’ type
タイプ

S-F’ type

間取り

2LDK+WIC

専有面積

53.56㎡

バルコニー面積

13.65㎡

  • 可変式間仕切り
  • ウォークインクローゼット
  • 北向き
  • フラットフロア
シティタワーズ板橋大山 ノースタワー/サウスタワー 間取り サウス_S-P type
タイプ

サウス_S-P type

間取り

2LDK+SIC

専有面積

53.81㎡

バルコニー面積

16.44㎡

  • 玄関からリビングが見えない間取り
  • 可変式間仕切り
  • シューズインクローゼット
  • 北向き
  • フラットフロア

このページの一番上へ