間取り
この物件の詳細情報に戻る2LDK掲載3件
3LDK掲載9件
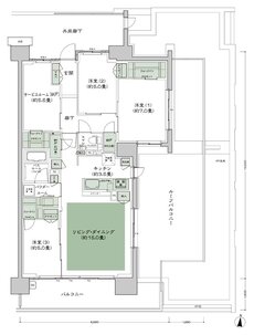
S:サービスルーム〔納戸〕 2N:2納戸 2WIC:2ウォークインクロゼット N:納戸 3WIC:3ウォークインクロゼット WIC:ウォークインクロゼット SIC:シューズインクロゼット
※掲載の図面は、施工上の都合・改良等により多少変更する場合があります。あらかじめご了承ください。
※掲載の図面は本タイプの基本図面です。階数・列により間取りが一部異なる場合があります。詳細は図面集をご確認ください。
関連する他の物件も見てみる
特徴
- 子どもと暮らす(186)
- I型キッチン(179)
- 対面キッチン(179)
- ウォークインクローゼット(172)
- 一人暮らし・二人暮らし向け(165)
- 床暖房(157)
- 可変式間仕切り(133)
- 複数沿線利用可能(130)
- 玄関からリビングが見えない間取り(129)
- シューズインクローゼット(127)
- 食器洗い乾燥機(食洗機)(126)
- 浴室暖房換気乾燥機(112)
- 平置き駐車場(111)
- 宅配ボックス(106)
- 複層ガラス(ペアガラス)(99)
- 高級マンション・ハイグレードマンション(97)
- モデルルーム公開中(96)
- ペット可(94)
- ハンズフリーキー(91)
- 2面バルコニー(87)
- 24時間ゴミ出し可能(83)
- 南向き(82)
- エコマンション(78)
- 西向き(78)
- 東向き(74)
- 防災設備(73)
- 大規模マンション(72)
- 二重床/二重天井(71)
- ディスポーザー(66)
- ラウンジ(63)
- ペット共用施設(55)
- 出入口が2か所以上あるキッチン(54)
- ミストサウナ(49)
- アウトフレーム工法(48)
- 耐震・免震・制振(40)
- ルーフバルコニー(39)
- スロップシンク(38)
- バリアフリー(34)
- テラス(30)
- 広いリビング(30)
- ハイサッシ(30)
- パーティールーム(29)
- 南向き中心(27)
- カスタマイズ/プランセレクト可能(25)
- ゲストルーム(23)
- キッズルーム(21)
- 丘の上・高台(20)
- コンシェルジュサービス(17)
- 広いバルコニー(16)
- オンラインで相談・見学・商談可能(15)
- 中庭(パティオ)(13)
- 公園・広場(11)
地域
間取り
価格帯
不動産会社
駅
沿線

