シティハウス小金井公園 間取り E-75B2s type
タイプ

E-75B2s type

間取り

2LDK+S+2N+2WIC

専有面積

72.72㎡

バルコニー面積

10.8㎡

  • 可変式間仕切り
  • ウォークインクローゼット
  • スロップシンク
  • 南向き
  • フラットフロア
シティハウス小金井公園 間取り F-70B3s type
タイプ

F-70B3s type

間取り

2LDK+S+N+2WIC

専有面積

67.67㎡

バルコニー面積

11.16㎡

  • 可変式間仕切り
  • ウォークインクローゼット
  • スロップシンク
  • 東向き
  • フラットフロア
シティハウス小金井公園 間取り D-70C type
タイプ

D-70C type

間取り

3LDK+N+2WIC

専有面積

70.79㎡

バルコニー面積

12.14㎡

備考

サービスバルコニー面積:1.37㎡

  • 可変式間仕切り
  • ウォークインクローゼット
  • 出入口が2か所以上あるキッチン
  • 2面バルコニー
  • スロップシンク
  • 東向き
  • フラットフロア
シティハウス小金井公園 間取り G-75B1t type
タイプ

G-75B1t type

間取り

3LDK+N+3WIC

専有面積

76.64㎡

バルコニー面積

-

備考

テラス面積:10.80㎡ (屋根あり)、25.50㎡ (屋根なし)

  • 可変式間仕切り
  • ウォークインクローゼット
  • スロップシンク
  • テラス
  • 南向き
  • フラットフロア
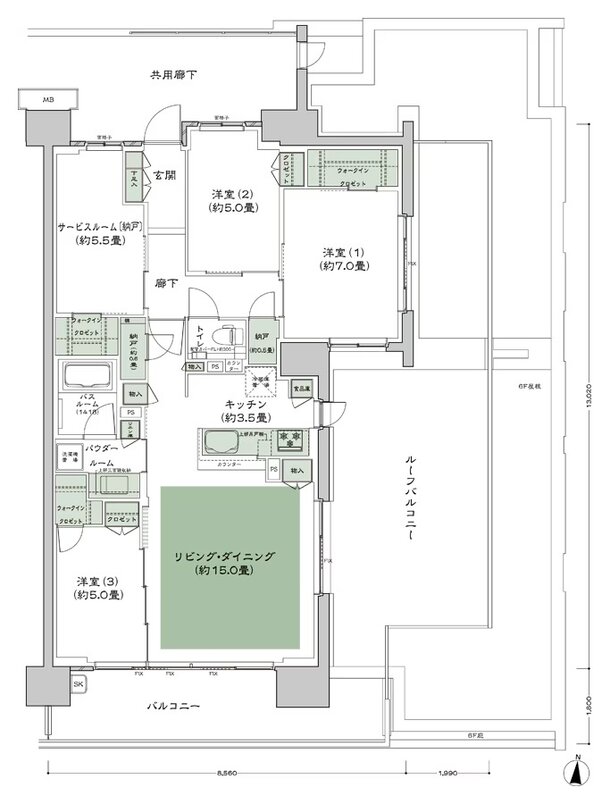
シティハウス小金井公園 間取り C-90Bt type
タイプ

C-90Bt type

間取り

4LDK+N+3WIC+SIC

専有面積

90.08㎡

バルコニー面積

-

備考

テラス面積:11.16㎡ (屋根あり)、27.85㎡ (屋根なし)

  • 玄関からリビングが見えない間取り
  • 可変式間仕切り
  • ウォークインクローゼット
  • シューズインクローゼット
  • スロップシンク
  • テラス
  • 南向き
  • フラットフロア

このページの一番上へ