クレアホームズ松江天神町 ザ・レジデンス 間取り C1 type(2~8F)
タイプ

C1 type(2~8F)

間取り

2LDK

専有面積

106.42㎡

バルコニー面積

11.53㎡

備考

※専有面積に防災倉庫面積:1.03㎡を含む
プライベートポーチ面積:6.27㎡

  • ポーチ
  • 玄関からリビングが見えない間取り
  • 広いリビング
  • ウォークインクローゼット
  • シューズインクローゼット
  • 2面バルコニー
  • スロップシンク
  • 西向き
クレアホームズ松江天神町 ザ・レジデンス 間取り C2 type(2~8F)
タイプ

C2 type(2~8F)

間取り

2LDK

専有面積

106.42㎡

バルコニー面積

11.53㎡

備考

※専有面積に防災倉庫面積:1.03㎡を含む
プライベートポーチ面積:6.27㎡

  • ポーチ
  • 玄関からリビングが見えない間取り
  • 広いリビング
  • ウォークインクローゼット
  • シューズインクローゼット
  • 2面バルコニー
  • スロップシンク
  • 西向き
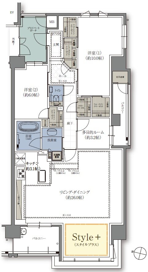
クレアホームズ松江天神町 ザ・レジデンス 間取り D type
タイプ

D type

間取り

2LDK+S

専有面積

153.17㎡

バルコニー面積

20.53㎡

備考

※専有面積に防災倉庫面積:0.81㎡を含む
プライベートポーチ面積:20.53㎡

  • ポーチ
  • 広いリビング
  • ウォークインクローゼット
  • シューズインクローゼット
  • 出入口が2か所以上あるキッチン
  • 浴室に窓
  • スロップシンク
  • 西向き

このページの一番上へ