- 価格
-
価格未定(予定)
- 専有面積
-
54.09㎡~84.10㎡
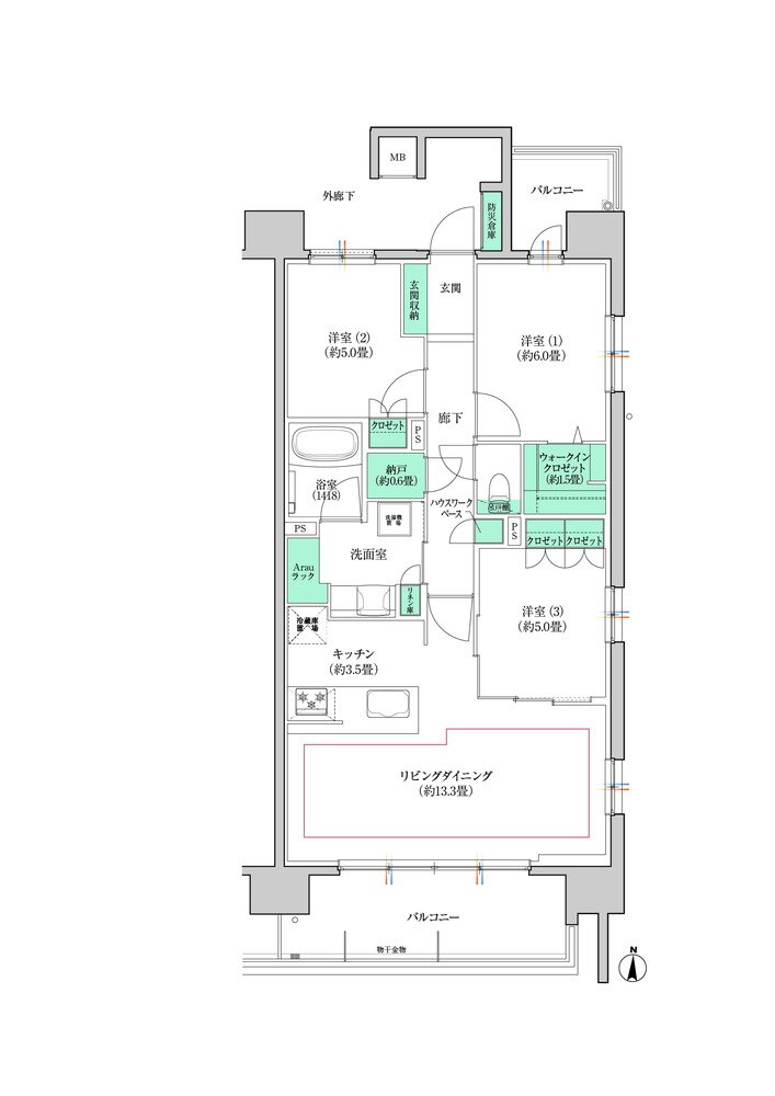
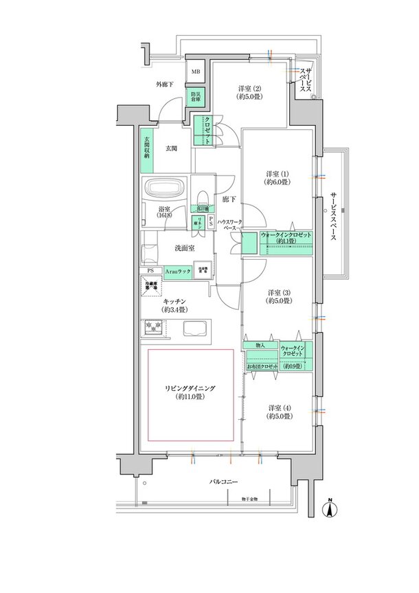
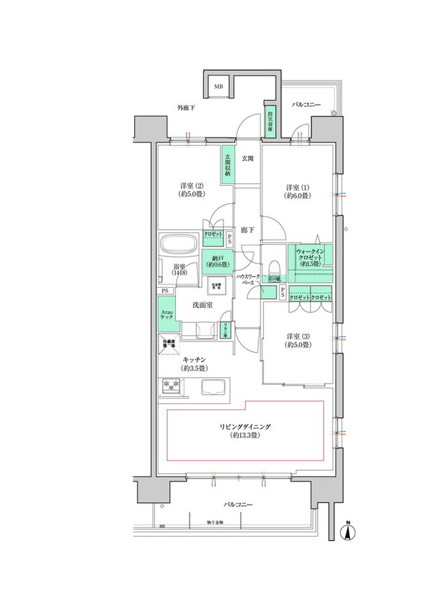
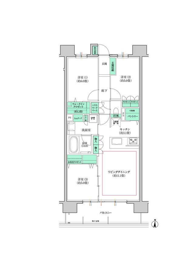
- 間取り
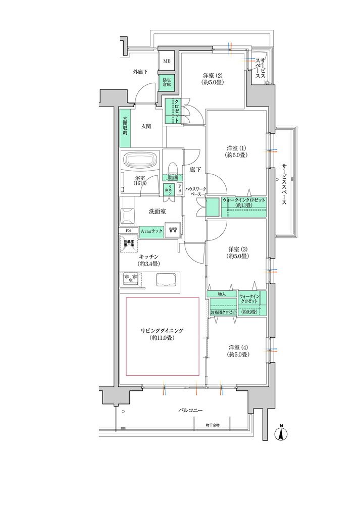
-
2LDK~4LDK
間取りを見る(3件)
- 販売スケジュール
-
2026年9月中旬販売開始(予定)

