- 価格
-
価格未定(予定)
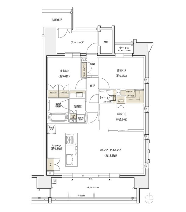
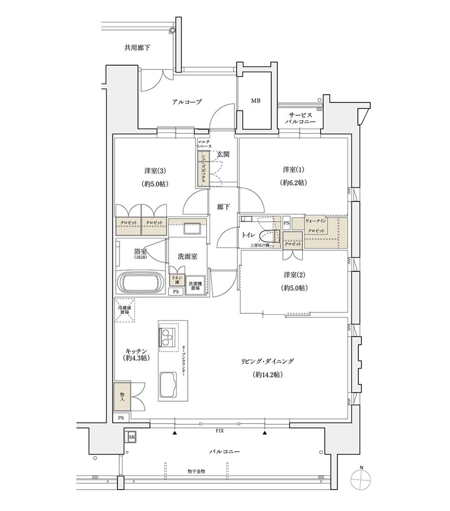
- 専有面積
-
58.86㎡~74.65㎡
- 間取り
-
2LDK~3LDK(2LDK+S)
間取りを見る(1件)
- 販売スケジュール
-
2026年7月下旬 販売開始予定

