- 価格
-
価格未定(予定)
- 専有面積
-
36.95㎡~82.02㎡
- 間取り
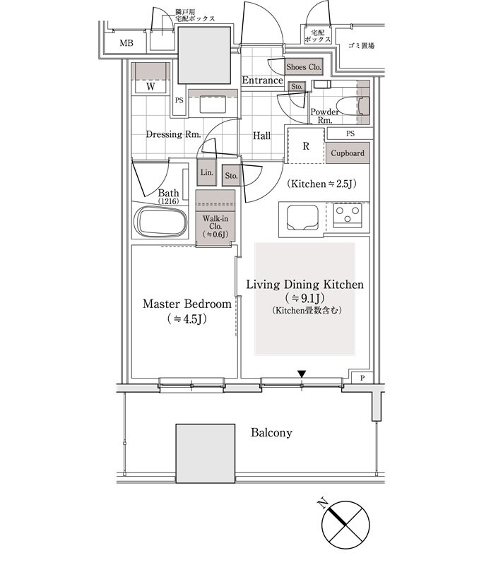
-
1LDK~3LDK
間取りを見る(2件)
- 販売スケジュール
-
2026年10月上旬販売予定

