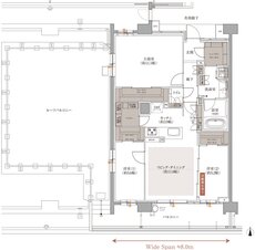
間取り
この物件の詳細情報に戻る2LDK掲載2件
※WIC:ウォークインクローゼット TR:トランクルーム N:納戸
※掲載の図面は計画段階(2024年11月時点の情報)のもので、施工上の都合・改良等により変更となる場合があります、予めご了承ください。方位記号は若干誤差があります。
関連する他の物件も見てみる
特徴
- 子どもと暮らす(110)
- 対面キッチン(105)
- I型キッチン(103)
- ウォークインクローゼット(102)
- 平置き駐車場(89)
- 可変式間仕切り(85)
- 一人暮らし・二人暮らし向け(83)
- モデルルーム公開中(81)
- 食器洗い乾燥機(食洗機)(79)
- 南向き(72)
- 浴室暖房換気乾燥機(70)
- 複層ガラス(ペアガラス)(70)
- 宅配ボックス(67)
- 床暖房(66)
- ハンズフリーキー(64)
- シューズインクローゼット(60)
- 駅近(駅徒歩5分以内・駅直結)(58)
- ペット可(56)
- 全戸南向き(51)
- 即入居可能(46)
- ペット共用施設(45)
- 駐車場100%以上(45)
- ZEHマンション(44)
- スロップシンク(38)
- 電気自動車対応(37)
- ラウンジ(35)
- 二重床/二重天井(35)
- 2面バルコニー(31)
- 南向き中心(28)
- 広いリビング(26)
- 省エネ対応(23)
- バリアフリー(17)
- 高級マンション・ハイグレードマンション(16)
- トランクルーム(11)
- テラス(9)
- L字バルコニー(7)
- ルーフバルコニー(5)
地域
間取り
価格帯
不動産会社
駅
沿線

