- 価格
-
価格未定(予定)
- 専有面積
-
65.00㎡~72.52㎡
- 間取り
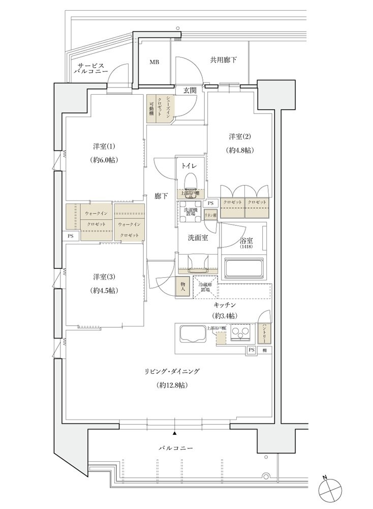
-
2LDK+S~3LDK
間取りを見る(2件)
- 販売スケジュール
-
2026年10月上旬開始予定

